3,690万円
4LDK
種別 戸建て
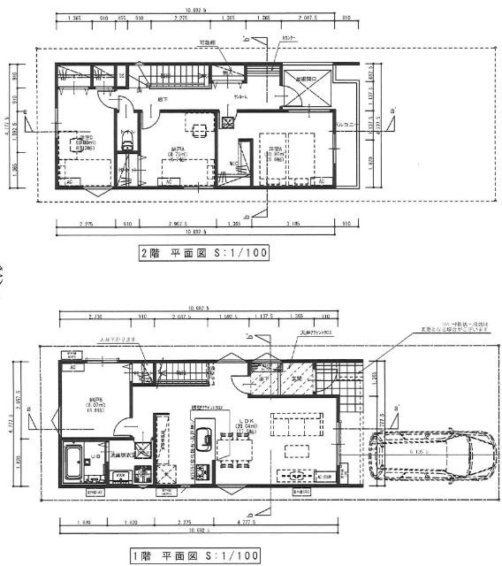
建物面積 96.37㎡(壁芯)
おすすめ
ポイント
2026年完成の新築マンション!快適な住み心地を実現します☆
普段使いも季節物も一緒に片付く大型WIC完備でお部屋スッキリ!
対面キッチンではお料理中でもお子様の様子が見られて安心です♪
17.5帖のダイニングでご家族全員で広々とゆったり寛げます◎
| 築年月 | 2026年5月 |
|---|---|
| 構造 | 木造 |
| 階数 | 2階建て |
| 土地面積 | 104.13㎡ (31.49坪) |
| 駐車スペース | 駐車場あり( 1台) |
| 都市計画 | 市街化区域 |
| 用途地域 | 第一種低層住居専用地域 |
| 建蔽率/容積率 | 50% / 100% |
| 地目 | 畑 |
| 区画整理 | - |
| 接道 | 南西側6.0m公道に接道 |
| 私道 | なし |
| 権利 | 所有権 |
| 借地権 | - |
| 現況 | 未完成 |
| 引渡時期 | 相談 |
| 引渡条件 | |
| 取引態様 | 媒介 |
| 管理コード | HF403283 |
設備・特記
《設備》:陽当り良好/上水道/南道路/前道6m以上/小学校徒歩10分以内/下水道/カウンターキッチン/クローゼット/システムキッチン/オートバス/3口コンロ/追い焚き風呂/LDK20畳以上/バルコニー/24時間換気システム/ワイドバルコニー/南面バルコニー/都市ガス/南向き/閑静な住宅街/納戸/全居室収納/浄水器/食器洗浄乾燥機/温水洗浄便座/ウォークインクローゼット/全居室フローリング/TVモニター付きインターホン
《物件の特徴》:2026年完成の新築マンション!快適な住み心地を実現します☆
備考
《その他》:販売戸数:1戸 / 備考:京成松戸線「五香」駅徒歩16分と閑静な好立地!のどかな環境でお子様の通園、通学にも安心です!スーパー・コンビニ徒歩10分圏内でお買い物にも便利で充実の住環境が整っていますね!☆お客様が満足できる物件が見つかるまで全力でサポートさせて頂きます☆ / 国土法届出:不要
《建築確認番号》:第25UDI1W建11855号
※詳細については、Webサイトにてご確認ください。現状と異なる場合は、現状を優先させていただきます。
※取引態様の欄に「媒介」と表示された物件は「仲介物件」です。ご成約の際には仲介手数料を申し受けます。
情報更新日|2026年4月23日
次回更新予定|2026年5月15日