6,399万円
3LDK
種別 戸建て
建物面積 108.12㎡(壁芯)
おすすめ
ポイント
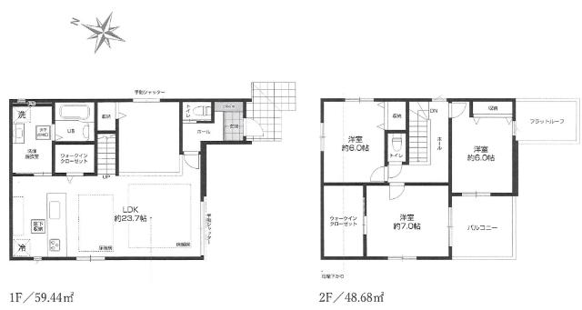
南東側6m公道につき陽当たり良好☆並列駐車2台可能です◎
23帖のLDKは床暖房を完備しており冬でも快適に過ごせます♪
全居室収納・ウォークインクローゼットも完備しております☆
全居室6帖以上なのでお子様のお部屋も広々作れますね!
| 築年月 | 2026年6月 |
|---|---|
| 構造 | 木造 |
| 階数 | 2階建て |
| 土地面積 | 120.94㎡ (36.58坪) |
| 駐車スペース | 駐車場あり( 2台) |
| 都市計画 | 市街化区域 |
| 用途地域 | 第一種中高層住居専用地域 |
| 建蔽率/容積率 | 60% / 200% |
| 地目 | 宅地 |
| 区画整理 | - |
| 接道 | 南東側6.0m公道に接道 |
| 私道 | なし |
| 権利 | 所有権 |
| 借地権 | - |
| 現況 | 未完成 |
| 引渡時期 | 相談 |
| 引渡条件 | |
| 取引態様 | 媒介 |
| 管理コード | HF403342 |
設備・特記
《設備》:陽当り良好/南道路/上水道/床暖房/前道6m以上/下水道/クローゼット/浴室暖房/システムキッチン/追い焚き風呂/3口コンロ/浴室乾燥機/バルコニー/LDK20畳以上/駐車場2台分/バルコニー2面以上/ワイドバルコニー/南面バルコニー/都市ガス/整形地/南向き/閑静な住宅街/2面採光/浄水器/全居室収納/トイレ2ヶ所/温水洗浄便座/洗髪洗面化粧台/食器洗浄乾燥機/床下収納/ウォークインクローゼット/全居室フローリング/TVモニター付きインターホン
《物件の特徴》:南東側6m公道につき陽当たり良好☆並列駐車2台可能です◎
備考
《その他》:販売戸数:1戸 / 備考:東葉高速鉄道「北習志野」駅「船橋日大前」まで徒歩11分の好立地です!通勤・通学にも便利ですね♪公園まで160m◎スーパーも徒歩圏内なので毎日のお買い物も便利です。☆お客様が満足できる物件が見つかるまで全力でサポートさせて頂きます☆ / 国土法届出:不要
《建築確認番号》:第25UDI1W建13209号
※詳細については、Webサイトにてご確認ください。現状と異なる場合は、現状を優先させていただきます。
※取引態様の欄に「媒介」と表示された物件は「仲介物件」です。ご成約の際には仲介手数料を申し受けます。
情報更新日|2026年3月28日
次回更新予定|2026年4月13日