4,680万円
4LDK
種別 戸建て
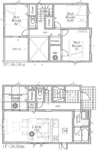
建物面積 104.96㎡(壁芯)
おすすめ
ポイント
オール電化の家!エコキュート搭載なので節約にもなります☆彡
宅配BOX完備!お仕事や外出した際の受け取りが楽々です♪
後付けの腰が重い太陽光パネルと1Fシャッター網戸標準装備☆彡
EV充電コンセントがあるので自宅で電気自動車を充電できます♪
| 築年月 | 2026年4月 |
|---|---|
| 構造 | 木造 |
| 階数 | 2階建て |
| 土地面積 | 201.31㎡ (60.89坪) |
| 駐車スペース | 駐車場あり( 2台) |
| 都市計画 | 市街化調整区域 |
| 用途地域 | 無指定 |
| 建蔽率/容積率 | 50% / 100% |
| 地目 | 宅地 |
| 区画整理 | - |
| 接道 | 北東側6.3m公道に接道 |
| 私道 | なし |
| 権利 | 所有権 |
| 借地権 | - |
| 現況 | 空室(入居歴無) |
| 引渡時期 | 相談 |
| 引渡条件 | |
| 取引態様 | 媒介 |
| 管理コード | HF403453 |
設備・特記
《設備》:陽当り良好/上水道/前道6m以上/小学校徒歩10分以内/カウンターキッチン/クローゼット/浴室暖房/システムキッチン/IHコンロ/オートバス/追い焚き風呂/3口コンロ/浴室乾燥機/24時間換気システム/駐車場2台分/南面バルコニー/南向き/浄化槽/吹抜/LDK15畳以上/閑静な住宅街/オール電化/浄水器/全居室収納/トイレ2ヶ所/温水洗浄便座/洗髪洗面化粧台/床下収納/シューズインクローゼット/ウォークインクローゼット/TVモニター付きインターホン
《物件の特徴》:-
備考
《その他》:販売戸数:1戸 / 備考:JR武蔵野線「市川大野」駅徒歩28分、JR中央総武線「本八幡」駅徒歩42分の閑静な住宅街にある新築戸建です☆彡小学校徒歩10分でお子様の通学も安心です◎コンビニ徒歩5分!周辺環境良好♪お客様が満足できる物件が見つかるまで全力でサポートさせていただきます♪ / 国土法届出:不要
《建築確認番号》:第25UDI1T建02667号
※詳細については、Webサイトにてご確認ください。現状と異なる場合は、現状を優先させていただきます。
※取引態様の欄に「媒介」と表示された物件は「仲介物件」です。ご成約の際には仲介手数料を申し受けます。
情報更新日|2026年4月18日
次回更新予定|2026年5月2日