5,580万円
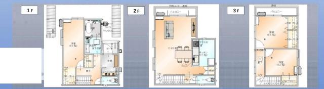
3LDK
種別 戸建て
建物面積 97.70㎡(壁芯)
おすすめ
ポイント
人気の夏見エリア!落ち着いた雰囲気漂う住宅街で新生活を◎
ご家族と会話を楽しみながらお料理が出来る対面キッチンです♪
東京電力・都市ガス・公共下水でライフライン充実しています☆彡
開放的&広いリビングは家族が自然と集まる居心地の良い空間です!
| 築年月 | 2026年9月 |
|---|---|
| 構造 | 木造 |
| 階数 | 2階建て |
| 土地面積 | 82.66㎡ (25.00坪) |
| 駐車スペース | 駐車場あり( 1台) |
| 都市計画 | 市街化区域 |
| 用途地域 | 第一種住居地域 |
| 建蔽率/容積率 | 60% / 200% |
| 地目 | 宅地 |
| 区画整理 | - |
| 接道 | 西側4.0m私道に7.3m接道 |
| 私道 | 私道負担面積:26.0㎡ |
| 権利 | 所有権 |
| 借地権 | - |
| 現況 | 未完成 |
| 引渡時期 | 相談 |
| 引渡条件 | 相談 |
| 取引態様 | 媒介 |
| 管理コード | HF403464 |
設備・特記
《設備》:陽当り良好/エアコン/閑静な住宅街/小学校徒歩10分以内/クローゼット/カウンターキッチン/全居室収納/トイレ2ヶ所/温水洗浄便座/食器洗浄乾燥機/システムキッチン/追い焚き風呂/3口コンロ/シューズインクローゼット/浴室乾燥機/バルコニー/全居室フローリング/バルコニー2面以上
《物件の特徴》:人気の夏見エリア!落ち着いた雰囲気漂う住宅街で新生活を◎
備考
《その他》:販売戸数:1戸 / 備考:JR総武線「船橋」駅 バス12分「夏見北」停 徒歩3分の立地に新築戸建てが誕生いたします!都心や千葉方面へのアクセスが良好なので、ご家族の通勤・通学に便利です♪また近隣にスーパーがあり、お買物に便利◎★お客様が満足できるまで全力でサポートさせていたします★ / 地勢:高台 / 国土法届出:不要
《建築確認番号》:第26UDIIC建00000
※詳細については、Webサイトにてご確認ください。現状と異なる場合は、現状を優先させていただきます。
※取引態様の欄に「媒介」と表示された物件は「仲介物件」です。ご成約の際には仲介手数料を申し受けます。
情報更新日|2026年4月21日
次回更新予定|2026年5月6日