6,480万円
2SLDK
種別 戸建て
建物面積 121.19㎡(壁芯)
おすすめ
ポイント
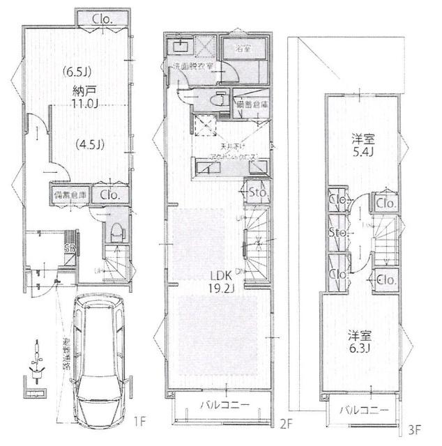
全13邸の大型分譲地の新築戸建!全面道路10mと広いです☆彡
3階建て南向き2面バルコニーにつき、陽当り・風通し良好です♪
とにかく収納が豊富な物件です◎全居室はもちろん床下や廊下にも☆
床暖房や設備がハイグレード!食洗機や追炊機能、浴室乾燥機まで♪
| 築年月 | 2026年3月 |
|---|---|
| 構造 | 木造 |
| 階数 | 3階建て |
| 土地面積 | 70.76㎡ (21.40坪) |
| 駐車スペース | 駐車場あり( 1台) |
| 都市計画 | 市街化区域 |
| 用途地域 | 第一種中高層住居専用地域 |
| 建蔽率/容積率 | 60% / 150% |
| 地目 | 宅地 |
| 区画整理 | - |
| 接道 | 南西側10.0m公道に接道 |
| 私道 | なし |
| 権利 | 所有権 |
| 借地権 | - |
| 現況 | 空室(入居歴無) |
| 引渡時期 | 相談 |
| 引渡条件 | |
| 取引態様 | 媒介 |
| 管理コード | HF403466 |
設備・特記
《設備》:陽当り良好/上水道/南道路/床暖房/前道6m以上/小学校徒歩10分以内/複層ガラス/下水道/カウンターキッチン/クローゼット/浴室暖房/システムキッチン/オートバス/追い焚き風呂/3口コンロ/浴室乾燥機/バルコニー/LDK18畳以上/24時間換気システム/バルコニー2面以上/南面バルコニー/都市ガス/エアコン/南向き/パントリー/納戸/浄水器/全居室収納/トイレ2ヶ所/温水洗浄便座/洗髪洗面化粧台/食器洗浄乾燥機/床下収納/全居室フローリング/TVモニター付きインターホン
《物件の特徴》:-
備考
《その他》:販売戸数:1戸 / 備考:都営新宿線「篠崎」駅より徒歩14分の閑静な住宅街にある新築分譲戸建☆彡小学校・中学校ともに近く、お子様の通学も安心です◎スーパー・コンビニも近く毎日のお買い物も便利です♪周辺環境良好♪お客様が満足できる物件が見つかるまで全力でサポートさせていただきます☆彡 / 国土法届出:不要
《建築確認番号》:第2025SBC-確01066Y号
※詳細については、Webサイトにてご確認ください。現状と異なる場合は、現状を優先させていただきます。
※取引態様の欄に「媒介」と表示された物件は「仲介物件」です。ご成約の際には仲介手数料を申し受けます。
情報更新日|2026年4月21日
次回更新予定|2026年5月4日