3,480万円
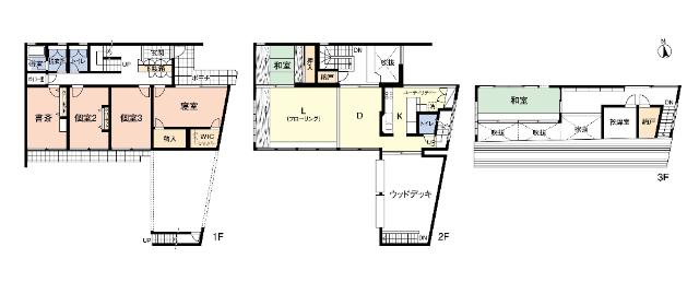
6SLDK
種別 戸建て
建物面積 173.57㎡(壁芯)
おすすめ
ポイント
有名建築家が設計のデザイナーズ邸!6SLDK+車庫+庭付き!
| 築年月 | 1995年2月 |
|---|---|
| 構造 | RC |
| 階数 | 3階建て |
| 土地面積 | 176.86㎡ (53.50坪) |
| 駐車スペース | 駐車場あり( 1台) |
| 都市計画 | 市街化区域 |
| 用途地域 | 第一種低層住居専用地域 |
| 建蔽率/容積率 | 50% / 100% |
| 地目 | 宅地 |
| 区画整理 | - |
| 接道 | 北側5.2m公道に12.0m接道/東側6.1m公道に11.6m接道 |
| 私道 | なし |
| 権利 | 所有権 |
| 借地権 | - |
| 現況 | 空室(入居歴無) |
| 引渡時期 | 即時 |
| 引渡条件 | |
| 取引態様 | 売主 |
| 管理コード | HP400134 |
設備・特記
《設備》:都市ガス/上水道/前道6m以上/吹抜/閑静な住宅街/小学校徒歩10分以内/内外装リフォーム/下水道/クローゼット/庭/トイレ2ヶ所/温水洗浄便座/洗髪洗面化粧台/システムキッチン/追い焚き風呂/角地
《物件の特徴》:-
備考
《その他制限》:22条指定、しらさぎ地区地区計画
《その他》:販売戸数:1戸 / 国土法届出:不要
※詳細については、Webサイトにてご確認ください。現状と異なる場合は、現状を優先させていただきます。
※取引態様の欄に「媒介」と表示された物件は「仲介物件」です。ご成約の際には仲介手数料を申し受けます。
情報更新日|2026年4月26日
次回更新予定|2026年5月11日