795万円
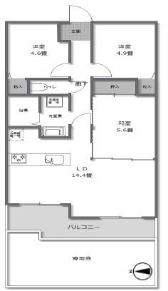
3LDK
種別 マンション
専有面積 67.52㎡(壁芯)
おすすめ
ポイント
3LDK 1階部分 専用庭付ガーデニング可能です!!
| 築年月 | 1988年8月 |
|---|---|
| 構造 | 鉄筋コンクリート造 |
| 所在階 | 地下1階・地上6階建ての1階 |
| 総戸数 | 41戸 |
| 向き | 西 |
| バルコニー面積 | 9.15㎡ |
| 駐車場 | - |
| 施工会社 | ㈱銭高組 |
| 管理会社 | 大和ライフネクスト㈱ |
| 管理形態 | 全部委託(日勤) |
| 権利 | 所有権 |
| 借地権 | - |
| 現況 | 居住中 |
| 引渡時期 | 相談 |
| 引渡条件 | |
| 管理費 | 8,100円/月 |
| 修繕積立金 | 18,910円/月 |
| 取引態様 | 媒介 |
| 管理コード | LH03169 |
設備・特記
《設備》:温水洗浄便座/洗髪洗面化粧台/都市ガス/システムキッチン/追い焚き風呂/3口コンロ/カウンターキッチン/エレベータ/オートロック
《物件の特徴》:-
備考
《その他月額費用》:専用庭使用料:630円
《その他》:施工会社(㈱銭高組) / 管理会社(大和ライフネクスト㈱) / 管理組合:あり / 国土法届出:不要
※詳細については、Webサイトにてご確認ください。現状と異なる場合は、現状を優先させていただきます。
※取引態様の欄に「媒介」と表示された物件は「仲介物件」です。ご成約の際には仲介手数料を申し受けます。
情報更新日|2026年4月7日
次回更新予定|2026年5月1日