3,280万円
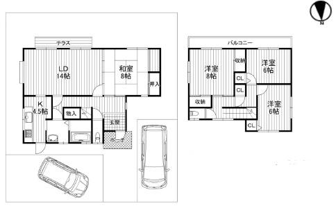
4LDK
種別 戸建て
建物面積 117.89㎡(壁芯)
おすすめ
ポイント
大和ハウス施工・土地約72.37坪・駐車2台可(車種による)
南向きワイドスパンバルコニー・南側に坪庭あり
令和8年3月リフォーム 交換:キッチン・お風呂・トイレ など
| 築年月 | 1992年1月 |
|---|---|
| 構造 | 軽量鉄骨造 |
| 階数 | 2階建て |
| 土地面積 | 239.25㎡ (72.37坪) |
| 駐車スペース | 駐車場あり( 2台) |
| 都市計画 | 市街化区域 |
| 用途地域 | 第一種低層住居専用地域 |
| 建蔽率/容積率 | 40% / 60% |
| 地目 | 宅地 |
| 区画整理 | - |
| 接道 | 北側6.0m公道に14.0m接道 |
| 私道 | なし |
| 権利 | 所有権 |
| 借地権 | - |
| 現況 | 空室(入居歴有) |
| 引渡時期 | 相談 |
| 引渡条件 | |
| 取引態様 | 媒介 |
| 管理コード | LH400433 |
設備・特記
《設備》:都市ガス/上水道/前道6m以上/内装リフォーム/閑静な住宅街/下水道/クローゼット/トイレ2ヶ所/温水洗浄便座/洗髪洗面化粧台/システムキッチン/浴室乾燥機/バルコニー/LDK18畳以上/駐車場2台分/TVモニター付きインターホン
《物件の特徴》:-
備考
※詳細については、Webサイトにてご確認ください。現状と異なる場合は、現状を優先させていただきます。
※取引態様の欄に「媒介」と表示された物件は「仲介物件」です。ご成約の際には仲介手数料を申し受けます。
情報更新日|2026年4月24日
次回更新予定|2026年5月21日