3,200万円
3LDK
種別 戸建て
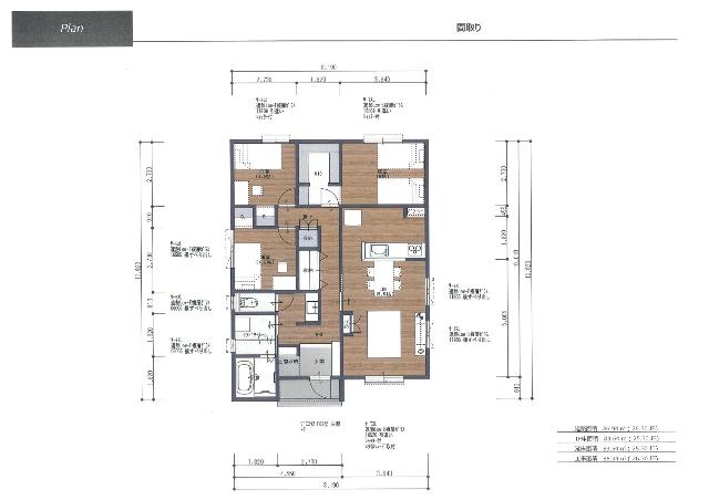
建物面積 83.64㎡(壁芯)
おすすめ
ポイント
キッズデザインを取り入れた家族みんなが住みやすい平屋
省令準耐火仕様+耐震等級3+制震システム「EVAS」で安心安全
ペットと暮らすことを想定したペット対応仕様です
駐車4台可能!EV車充電設備も設置予定です
| 築年月 | 2026年7月 |
|---|---|
| 構造 | 木造 |
| 階数 | 1階建て |
| 土地面積 | 206.65㎡ (62.51坪) |
| 駐車スペース | 駐車場あり( 4台) |
| 都市計画 | 非線引区域 |
| 用途地域 | 無指定 |
| 建蔽率/容積率 | 70% / 200% |
| 地目 | 宅地 |
| 区画整理 | - |
| 接道 | 南側6.3m私道に11.4m接道/位置指定道路:あり |
| 私道 | 私道負担面積:420.51㎡(持分:1/10) |
| 権利 | 所有権 |
| 借地権 | - |
| 現況 | 未着工 |
| 引渡時期 | 相談 |
| 引渡条件 | 相談 |
| 取引態様 | 媒介 |
| 管理コード | LV400198 |
設備・特記
《設備》:陽当り良好/制震構造/上水道/南道路/前道6m以上/小学校徒歩10分以内/複層ガラス/開発分譲地内/カウンターキッチン/クローゼット/浴室暖房/システムキッチン/IHコンロ/3口コンロ/浴室乾燥機/照明器具/駐車場2台分/駐車場3台分/高気密高断熱住宅/プロパンガス/隣接建物距離2m以上/前面棟無/整形地/南向き/浄化槽/LDK15畳以上/オール電化/閑静な住宅街/2面採光/パントリー/全居室収納/温水洗浄便座/洗髪洗面化粧台/食器洗浄乾燥機/バス1坪以上/ウォークインクローゼット/全居室フローリング/TVモニター付きインターホン
《物件の特徴》:キッズデザインを取り入れた家族みんなが住みやすい平屋
備考
《その他》:施工会社(カジワラホーム(株)) / 備考:全室LED証明、住設10年保証付き / 地勢:平坦 / 国土法届出:不要 / 設備保証:付
《建築確認番号》:第2025建確-1341号
※詳細については、Webサイトにてご確認ください。現状と異なる場合は、現状を優先させていただきます。
※取引態様の欄に「媒介」と表示された物件は「仲介物件」です。ご成約の際には仲介手数料を申し受けます。
情報更新日|2025年12月27日
次回更新予定|2026年1月11日