2,480万円
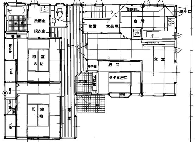
6LDK
種別 戸建て
建物面積 204.20㎡(壁芯)
おすすめ
ポイント
東本成寺の閑静な住宅街の角地♪建物状態良好です
前面道路融雪有!駐車場4台可!
築年月 | 2000年10月 |
---|---|
構造 | 木造 |
階数 | 2階建て |
土地面積 | 396.95㎡ (120.07坪) |
駐車スペース | 駐車場あり( 4台) |
都市計画 | 非線引区域 |
用途地域 | 第二種中高層住居専用地域 |
建蔽率/容積率 | 60% / 200% |
地目 | 宅地 |
区画整理 | - |
接道 | 南側7.3m公道に接道/東側5.1m公道に接道 |
私道 | なし |
権利 | 所有権 |
借地権 | - |
現況 | 空室(入居歴有) |
引渡時期 | 相談 |
引渡条件 | 現況渡し |
取引態様 | 媒介 |
管理コード | LW400067 |
設備・特記
《設備》:上水道/南道路/前道6m以上/複層ガラス/カウンターキッチン/クローゼット/庭/システムキッチン/IHコンロ/追い焚き風呂/2口コンロ/照明器具/駐車場3台分/都市ガス/浄化槽/閑静な住宅街/2面採光/全居室収納/トイレ2ヶ所/温水洗浄便座/洗髪洗面化粧台/食器洗浄乾燥機/バス1坪以上/ウォークインクローゼット/角地
《物件の特徴》:東本成寺の閑静な住宅街の角地♪建物状態良好です
備考
《その他制限》:居住誘導区域、都市機能誘導区域
《その他》:備考:・現況渡し(家財は売主で撤去します)・水道管は連合管です。・居住誘導区域、都市機能誘導区域・車庫間口(3.6m、2.7m、3.6mと並んでます)・車庫3台分内、左側のシャッターのみ自動です。・引渡時期は要相談ください。 / 地勢:平坦 / 国土法届出:不要
※詳細については、Webサイトにてご確認ください。現状と異なる場合は、現状を優先させていただきます。
※取引態様の欄に「媒介」と表示された物件は「仲介物件」です。ご成約の際には仲介手数料を申し受けます。
情報更新日|2025年10月18日
次回更新予定|2025年11月2日