20,800万円
5LDK
種別 戸建て
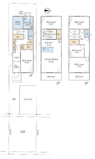
建物面積 136.53㎡(壁芯)
おすすめ
ポイント
【積水ハウス施工】内装・外壁新規リフォーム物件
菊川駅徒歩6分|平成17年築・駐車場付き5LDK
土地面積120.59㎡建物面積136.53㎡のゆとりある住まい
2台駐車可能のシャッター付きカーポート
| 築年月 | 2005年11月 |
|---|---|
| 構造 | 鉄骨造 |
| 階数 | 3階建て |
| 土地面積 | 120.59㎡ (36.47坪) |
| 駐車スペース | 駐車場あり( 1台) |
| 都市計画 | 市街化区域 |
| 用途地域 | 準工業地域/商業地域 |
| 建蔽率/容積率 | 80%/60% / 500%/ 300% |
| 地目 | 宅地 |
| 区画整理 | - |
| 接道 | 東側8.0m公道に5.4m接道 |
| 私道 | なし |
| 権利 | 所有権 |
| 借地権 | - |
| 現況 | 空室(入居歴有) |
| 引渡時期 | 相談 |
| 引渡条件 | |
| 取引態様 | 売主 |
| 管理コード | NA400098 |
設備・特記
《設備》:リノベーション/上水道/床暖房/耐震構造/前道6m以上/内装リフォーム/フラット35S適合・利用可/小学校徒歩10分以内/下水道/カウンターキッチン/クローゼット/浴室暖房/システムキッチン/TV付浴室/IHコンロ/オートバス/追い焚き風呂/3口コンロ/浴室乾燥機/バルコニー/都市ガス/エアコン/三面採光/LDK15畳以上/閑静な住宅街/トイレ2ヶ所/温水洗浄便座/洗髪洗面化粧台/食器洗浄乾燥機/TVモニター付きインターホン
《物件の特徴》:【積水ハウス施工】内装・外壁新規リフォーム物件菊川駅徒歩6分|平成17年築・駐車場付き5LDK
備考
《その他》:施工会社((株)積水ハウス) / 備考:◆3口IHクッキングヒーターを備えた対面式キッチン。食洗機・浄水器・グリル付きで調理も快適◆居室収納2カ所+廊下収納6カ所。収納に優れた住まい◆洗濯乾燥機・追炊き機能付きで、快適なバスタイムを実現◆床暖房付きで、冬でも快適な暮らし / 地勢:平坦 / 国土法届出:不要
※詳細については、Webサイトにてご確認ください。現状と異なる場合は、現状を優先させていただきます。
※取引態様の欄に「媒介」と表示された物件は「仲介物件」です。ご成約の際には仲介手数料を申し受けます。
情報更新日|2026年3月26日
次回更新予定|2026年4月10日