3,380万円
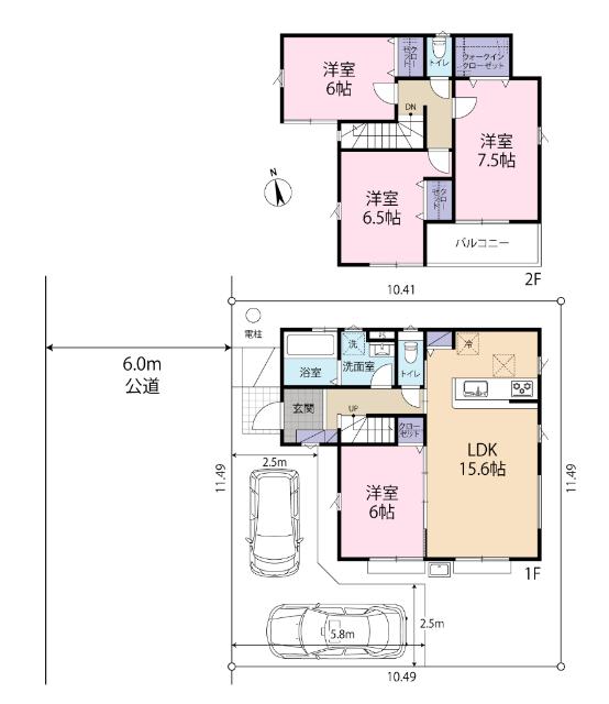
4LDK
種別 戸建て
建物面積 98.12㎡(壁芯)
おすすめ
ポイント
2017年5月築の4LDK!全居室6帖以上のゆとりある間取り♪
敷地面積約36.3坪の整形地(^_-)-☆
西側6m公道に約11.4m面しており駐車もスムーズ!
2026年1月中旬新規リフォーム完了予定です
| 築年月 | 2017年5月 |
|---|---|
| 構造 | 木造 |
| 階数 | 2階建て |
| 土地面積 | 120.15㎡ (36.34坪) |
| 駐車スペース | 駐車場あり( 2台) |
| 都市計画 | 市街化区域 |
| 用途地域 | 第一種低層住居専用地域 |
| 建蔽率/容積率 | 50% / 100% |
| 地目 | 宅地 |
| 区画整理 | - |
| 接道 | 西側6.0m公道に11.4m接道 |
| 私道 | なし |
| 権利 | 所有権 |
| 借地権 | - |
| 現況 | 空室(入居歴有) |
| 引渡時期 | 相談 |
| 引渡条件 | |
| 取引態様 | 媒介 |
| 管理コード | PG400586 |
設備・特記
《設備》:都市ガス/上水道/整形地/前道6m以上/南向き/内装リフォーム/浄化槽/全室2面採光/小学校徒歩10分以内/LDK15畳以上/カウンターキッチン/クローゼット/全居室収納/トイレ2ヶ所/オープンキッチン/システムキッチン/3口コンロ/ウォークインクローゼット/バルコニー/照明器具/駐車場2台分/全室南向き/ワイドバルコニー
《物件の特徴》:2017年5月築の4LDK!全居室6帖以上のゆとりある間取り♪
備考
《その他制限》:宅地造成及び特定盛土等規制法、景観法、都市再生特別措置法
《その他》:販売戸数:1戸 / 国土法届出:不要
※詳細については、Webサイトにてご確認ください。現状と異なる場合は、現状を優先させていただきます。
※取引態様の欄に「媒介」と表示された物件は「仲介物件」です。ご成約の際には仲介手数料を申し受けます。
情報更新日|2025年11月27日
次回更新予定|2025年12月12日