4,098万円
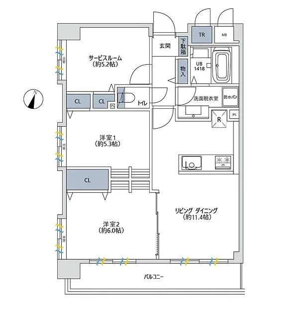
2SLDK
種別 マンション
専有面積 61.35㎡(壁芯)
おすすめ
ポイント
新規内装リフォーム物件!!
最上階角部屋で陽当たり・眺望良好♪♪
平置き駐車場専用使用権付!!(無償)
アフターサービス保証付き!!
| 築年月 | 1998年3月 |
|---|---|
| 構造 | 鉄筋コンクリート造 |
| 所在階 | 地下1階・地上7階建ての7階 |
| 総戸数 | 42戸 |
| 向き | 南 |
| バルコニー面積 | 8.50㎡ |
| 駐車場 | 駐車場有り 無料 |
| 施工会社 | (株)森本組 |
| 管理会社 | 日本ハウズイング(株) |
| 管理形態 | 全部委託(日勤) |
| 権利 | 所有権 |
| 借地権 | - |
| 現況 | 空室(入居歴有) |
| 引渡時期 | 即時 |
| 引渡条件 | |
| 管理費 | 19,450円/月 |
| 修繕積立金 | 26,380円/月 |
| 取引態様 | 媒介 |
| 管理コード | PX400218 |
設備・特記
《設備》:リノベーション/陽当り良好/角住戸/洗濯機置場/内装リフォーム/洗濯機置き場有り/外観タイル張り/室内洗濯機置場/小学校徒歩10分以内/カウンターキッチン/クローゼット/収納スペース/システムキッチン/追い焚き風呂/3口コンロ/浴室乾燥機/バルコニー/平面駐車場/照明器具/最上階/人感センサー付照明/ペット不可/角部屋/南面バルコニー/エアコン/都市ガス/全居室収納/浄水器/温水洗浄便座/トランクルーム/シューズボックス/エレベータ/出窓/全居室フローリング/オートロック/給湯
《物件の特徴》:-
備考
《その他》:施工会社((株)森本組) / 管理会社(日本ハウズイング(株)) / 用途地域:準工業地域 / 国土法届出:不要
※詳細については、Webサイトにてご確認ください。現状と異なる場合は、現状を優先させていただきます。
※取引態様の欄に「媒介」と表示された物件は「仲介物件」です。ご成約の際には仲介手数料を申し受けます。
情報更新日|2025年12月16日
次回更新予定|2025年12月31日