5,990万円
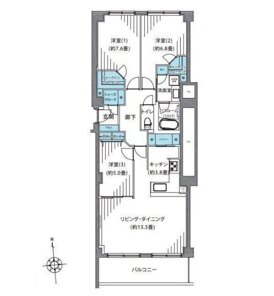
3LDK
種別 マンション
専有面積 88.52㎡(壁芯)
おすすめ
ポイント
フルスケルトンリフォーム♪♪
約19.3帖の広々LDK!!
みなとみらい方面・ベイブリッジ等一望できます☆彡
管理人常駐!良好な管理体制!!
| 築年月 | 1969年11月 |
|---|---|
| 構造 | 鉄筋コンクリート造 |
| 所在階 | 9階建ての5階 |
| 総戸数 | 70戸 |
| 向き | 南 |
| バルコニー面積 | - |
| 駐車場 | - |
| 施工会社 | - |
| 管理会社 | (株)京急リブコ |
| 管理形態 | 全部委託(常駐) |
| 権利 | 所有権 |
| 借地権 | - |
| 現況 | 空室(入居歴有) |
| 引渡時期 | 即時 |
| 引渡条件 | |
| 管理費 | 20,800円/月 |
| 修繕積立金 | 22,145円/月 |
| 取引態様 | 媒介 |
| 管理コード | PX400258 |
設備・特記
《設備》:陽当り良好/リノベーション/洗濯機置場/内装リフォーム/洗濯機置き場有り/室内洗濯機置場/インターネット対応/カウンターキッチン/クローゼット/収納スペース/システムキッチン/追い焚き風呂/3口コンロ/浴室乾燥機/バルコニー/照明器具/LDK18畳以上/ペット対応/人感センサー付照明/南面バルコニー/エアコン/ペット相談可/閑静な住宅街/全居室収納/浄水器/温水洗浄便座/洗髪洗面化粧台/食器洗浄乾燥機/シューズボックス/ウォークインクローゼット/エレベータ/全居室フローリング/給湯/TVモニター付きインターホン/防犯カメラ
《物件の特徴》:-
備考
《その他》:管理会社((株)京急リブコ) / 備考:●3LDK+豊富な収納 ●ペットと暮らせるマンション ●家具・エアコン1台付●閑静な住宅街に佇むヴィンテージマンション ●アフターサービス保証付 / 用途地域:第一種低層住居専用地域 / 国土法届出:不要
※詳細については、Webサイトにてご確認ください。現状と異なる場合は、現状を優先させていただきます。
※取引態様の欄に「媒介」と表示された物件は「仲介物件」です。ご成約の際には仲介手数料を申し受けます。
情報更新日|2026年4月24日
次回更新予定|2026年5月10日