4,090万円
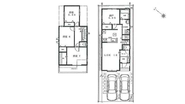
3SLDK
種別 戸建て
建物面積 96.26㎡(壁芯)
おすすめ
ポイント
仙台市宮城野区新田新築戸建!!2026年6月完成予定。
JR東北本線【東仙台】駅徒歩10分。
JR仙石線【苦竹】駅徒歩13分。
| 築年月 | 2026年6月 |
|---|---|
| 構造 | 木造 |
| 階数 | 2階建て |
| 土地面積 | 107.91㎡ (32.64坪) |
| 駐車スペース | 駐車場あり( 2台) |
| 都市計画 | 市街化区域 |
| 用途地域 | 第一種住居地域 |
| 建蔽率/容積率 | 60% / 200%/ 160% |
| 地目 | 宅地 |
| 区画整理 | - |
| 接道 | 南西側4.3m公道に接道 |
| 私道 | なし |
| 権利 | 所有権 |
| 借地権 | - |
| 現況 | 未完成 |
| 引渡時期 | 相談 |
| 引渡条件 | |
| 取引態様 | 媒介 |
| 管理コード | QE400096 |
設備・特記
《設備》:都市ガス/上水道/LDK15畳以上/下水道/カウンターキッチン/クローゼット/納戸/トイレ2ヶ所/温水洗浄便座/3口コンロ/シューズインクローゼット/ウォークインクローゼット/全居室フローリング/駐車場2台分/TVモニター付きインターホン
《物件の特徴》:-
備考
《その他》:販売戸数:1戸 / 備考:北西側通路部分があり、隣地所有者との共有地となっております。※持分1/2 / 地勢:平坦 / 国土法届出:不要
《建築確認番号》:第HPA-26-01957-1号
※詳細については、Webサイトにてご確認ください。現状と異なる場合は、現状を優先させていただきます。
※取引態様の欄に「媒介」と表示された物件は「仲介物件」です。ご成約の際には仲介手数料を申し受けます。
情報更新日|2026年4月14日
次回更新予定|2026年5月1日