14,498万円
2LDK
種別 戸建て
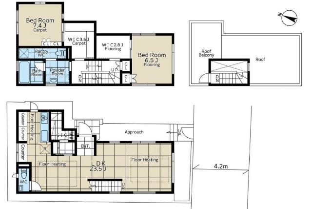
建物面積 97.50㎡(壁芯)
おすすめ
ポイント
即日ご見学可能!大理石仕様中古戸建 -駒澤大学駅徒歩7分-
| 築年月 | 2013年11月 |
|---|---|
| 構造 | 木造 |
| 階数 | 2階建て |
| 土地面積 | 83.11㎡ (25.14坪) |
| 駐車スペース | - |
| 都市計画 | 市街化区域 |
| 用途地域 | 第一種低層住居専用地域 |
| 建蔽率/容積率 | 60% / 150% |
| 地目 | 宅地 |
| 区画整理 | - |
| 接道 | 南側4.2m公道に5.7m接道 |
| 私道 | なし |
| 権利 | 所有権 |
| 借地権 | - |
| 現況 | 空室(入居歴有) |
| 引渡時期 | 即時 |
| 引渡条件 | |
| 取引態様 | 媒介 |
| 管理コード | SJ400321 |
設備・特記
《設備》:-
《物件の特徴》:大理石や無垢材など自然素材を使った高級感あふれる邸宅となっております!
備考
※詳細については、Webサイトにてご確認ください。現状と異なる場合は、現状を優先させていただきます。
※取引態様の欄に「媒介」と表示された物件は「仲介物件」です。ご成約の際には仲介手数料を申し受けます。
情報更新日|2025年11月9日
次回更新予定|2025年11月23日