20,800万円
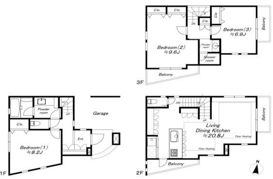
3LDK
種別 戸建て
建物面積 107.14㎡(壁芯)
おすすめ
ポイント
渋谷区代々木3丁目
4駅複数路線利用可能、小田急小田原線「参宮橋」駅徒歩3分
公道面の南東角地、明治神宮徒歩4分、代々木公園徒歩14分
建物107㎡、LDK20.8帖、全居室6.9帖以上
| 築年月 | 2011年11月 |
|---|---|
| 構造 | 木造 |
| 階数 | 3階建て |
| 土地面積 | 64.88㎡ (19.62坪) |
| 駐車スペース | 駐車場あり( 1台) |
| 都市計画 | 市街化区域 |
| 用途地域 | |
| 建蔽率/容積率 | 60% / 200% |
| 地目 | 宅地 |
| 区画整理 | - |
| 接道 | 東側5.4m公道に接道/南東側3.1m公道に接道 |
| 私道 | 私道負担面積:11.83㎡ |
| 権利 | 所有権 |
| 借地権 | - |
| 現況 | 空室(入居歴有) |
| 引渡時期 | 相談 |
| 引渡条件 | |
| 取引態様 | 媒介 |
| 管理コード | SJ400335 |
設備・特記
《設備》:リノベーション/都市ガス/上水道/床暖房/整形地/小学校徒歩10分以内/下水道/クローゼット/全居室収納/トイレ2ヶ所/温水洗浄便座/食器洗浄乾燥機/システムキッチン/追い焚き風呂/3口コンロ/シューズインクローゼット/浴室乾燥機/LDK20畳以上/バルコニー/全居室フローリング/角地
《物件の特徴》:-
備考
《その他》:販売戸数:1戸 / 地勢:平坦 / 国土法届出:不要
※詳細については、Webサイトにてご確認ください。現状と異なる場合は、現状を優先させていただきます。
※取引態様の欄に「媒介」と表示された物件は「仲介物件」です。ご成約の際には仲介手数料を申し受けます。
情報更新日|2025年11月21日
次回更新予定|2025年12月6日