8,980万円
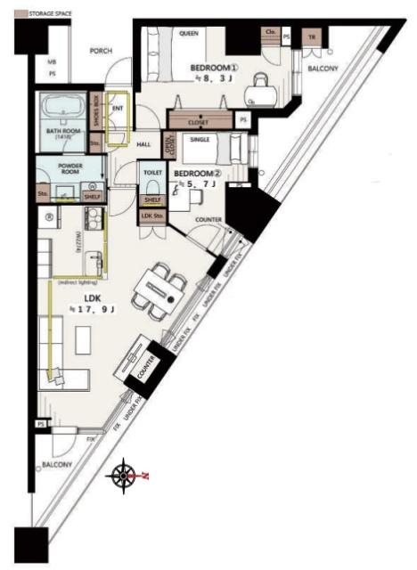
2LDK
種別 マンション
専有面積 68.22㎡(壁芯)
おすすめ
ポイント
生活に必要な買い物施設が近く、利便性が高い。
すぐ隣にイトーヨーカドーがあり、日常の買い物が便利。
免震構造を採用したマンション
吹き抜けのサンクンガーデン(中庭)があり、緑の安らぎ空間が確保
| 築年月 | 2005年1月 |
|---|---|
| 構造 | 鉄筋コンクリート造 |
| 所在階 | 地下2階・地上25階建ての10階 |
| 総戸数 | 565戸 |
| 向き | 東 |
| バルコニー面積 | 13.61㎡ |
| 駐車場 | 駐車場有り 15,087円/月 |
| 施工会社 | (株)大林組 |
| 管理会社 | (株)東急コミュニティー |
| 管理形態 | 全部委託(日勤) |
| 権利 | 所有権 |
| 借地権 | - |
| 現況 | 空室(入居歴有) |
| 引渡時期 | 即時 |
| 引渡条件 | 現況渡し |
| 管理費 | 12,416円/月 |
| 修繕積立金 | - |
| 取引態様 | 媒介 |
| 管理コード | SJ400338 |
設備・特記
《設備》:陽当り良好/免震構造/内装リフォーム/インターネット対応/クローゼット/浴室暖房/システムキッチン/IHコンロ/オートバス/追い焚き風呂/浴室乾燥機/照明器具/共用ゲストルーム/24時間換気システム/常時ゴミ出し可能/LDK15畳以上/浄水器/全居室収納/温水洗浄便座/洗髪洗面化粧台/食器洗浄乾燥機/ディスポーザー/トランクルーム/エレベーター2基以上/フロントサービス/全居室フローリング/モニタ付オートロック/宅配BOX/TVモニター付きインターホン/オートロック/キッズルーム
《物件の特徴》:-
備考
《その他費用》:修繕積立基金21,301円
《その他》:施工会社((株)大林組) / 管理会社((株)東急コミュニティー) / 販売戸数:1戸 / 用途地域:準工業地域 / 地勢:平坦 / 国土法届出:不要 / 小型犬可
※詳細については、Webサイトにてご確認ください。現状と異なる場合は、現状を優先させていただきます。
※取引態様の欄に「媒介」と表示された物件は「仲介物件」です。ご成約の際には仲介手数料を申し受けます。
情報更新日|2025年11月23日
次回更新予定|2025年12月13日