8,199万円
3LDK
種別 マンション
専有面積 81.62㎡(壁芯)
おすすめ
ポイント
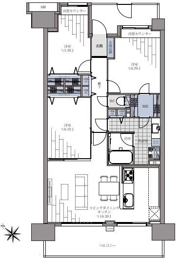
LDK16.3帖のカウンターキッチン
専有面積:81.62㎡、6.7帖×6.1帖×5.3帖(洋室)
ペット飼育可能(一住戸二匹まで)
2025年11月下旬リフォーム完了予定
| 築年月 | 2003年8月 |
|---|---|
| 構造 | 鉄筋コンクリート造 |
| 所在階 | 15階建ての3階 |
| 総戸数 | 758戸 |
| 向き | 南西 |
| バルコニー面積 | 14.00㎡ |
| 駐車場 | 駐車場有り 13,000円/月 |
| 施工会社 | - |
| 管理会社 | (株)長谷工コミュニティ |
| 管理形態 | 全部委託(日勤) |
| 権利 | 所有権 |
| 借地権 | - |
| 現況 | 空室(入居歴有) |
| 引渡時期 | 相談 |
| 引渡条件 | |
| 管理費 | 19,900円/月 |
| 修繕積立金 | 10,990円/月 |
| 取引態様 | 媒介 |
| 管理コード | SJ400348 |
設備・特記
《設備》:リノベーション/都市ガス/常時ゴミ出し可能/室内洗濯機置場/LDK15畳以上/カウンターキッチン/クローゼット/全居室収納/温水洗浄便座/洗髪洗面化粧台/食器洗浄乾燥機/システムキッチン/追い焚き風呂/3口コンロ/シューズインクローゼット/浴室乾燥機/エレベータ/共用ゲストルーム/全居室フローリング/モニタ付オートロック/ペット対応/オートロック
《物件の特徴》:-
備考
《その他月額費用》:修繕積立金(棟別):16400円/自治会費:100円
《その他》:管理会社((株)長谷工コミュニティ) / 販売戸数:1戸 / 地勢:平坦 / 国土法届出:不要 / 小型犬可
※詳細については、Webサイトにてご確認ください。現状と異なる場合は、現状を優先させていただきます。
※取引態様の欄に「媒介」と表示された物件は「仲介物件」です。ご成約の際には仲介手数料を申し受けます。
情報更新日|2025年11月24日
次回更新予定|2025年12月15日