1,350万円
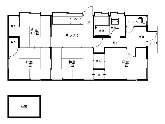
4DK
種別 戸建て
建物面積 65.66㎡(壁芯)
おすすめ
ポイント
小名浜岡小名字小堤 ※南西角地物件の人気の平家建です!!
閑静な住宅街で周辺の住環境が整っています。南西角地にて陽当り◎
部屋数も多く、駐車スペースも3台可能です♪
内覧可能ですが、居住中のため事前にお問い合わせ下さい♪
| 築年月 | 1973年12月 |
|---|---|
| 構造 | 木造 |
| 階数 | 1階建て |
| 土地面積 | 307.19㎡ (92.92坪) |
| 駐車スペース | 駐車場あり( 3台) |
| 都市計画 | 市街化区域 |
| 用途地域 | 第一種住居地域 |
| 建蔽率/容積率 | 60% / 200% |
| 地目 | 宅地 |
| 区画整理 | - |
| 接道 | 南側4.0m公道に18.2m接道/西側4.0m私道に16.0m接道/位置指定道路:あり |
| 私道 | なし |
| 権利 | 所有権 |
| 借地権 | - |
| 現況 | 居住中 |
| 引渡時期 | 相談 |
| 引渡条件 | 現況渡し |
| 取引態様 | 媒介 |
| 管理コード | SL400042 |
設備・特記
《設備》:プロパンガス/陽当り良好/上水道/南道路/整形地/南向き/内装リフォーム/閑静な住宅街/小学校徒歩10分以内/下水道/庭/駐車場3台分/角地
《物件の特徴》:-
備考
《その他》:販売戸数:1戸 / 地勢:平坦 / 国土法届出:不要
※詳細については、Webサイトにてご確認ください。現状と異なる場合は、現状を優先させていただきます。
※取引態様の欄に「媒介」と表示された物件は「仲介物件」です。ご成約の際には仲介手数料を申し受けます。
情報更新日|2025年11月1日
次回更新予定|2025年11月23日