4,990万円
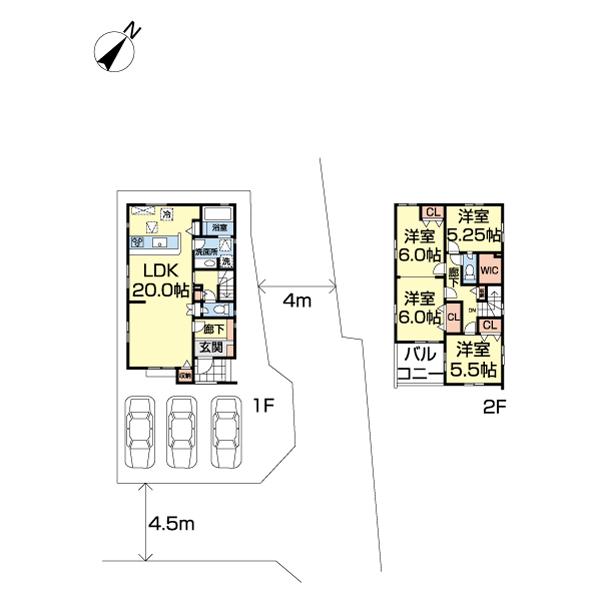
3LDK
種別 戸建て
建物面積 107.95㎡(壁芯)
おすすめ
ポイント
全5棟 太陽光パネル設置!敷地40坪〜 カースペース2台以上
長期優良住宅 住宅性能評価W取得 LDK18帖以上 食洗器つき
収納豊富。大型収納も細やかな収納も豊富なので家具配置も納得。
各棟、広いバルコニーも魅力です。落ち着いた住宅街に誕生!
| 築年月 | 2025年12月 |
|---|---|
| 構造 | 木造 |
| 階数 | 2階建て |
| 土地面積 | 143.18㎡ (43.31坪) |
| 駐車スペース | 駐車場あり( 3台) |
| 都市計画 | 市街化区域 |
| 用途地域 | 第一種住居地域 |
| 建蔽率/容積率 | 60% / 200% |
| 地目 | 宅地 |
| 区画整理 | - |
| 接道 | |
| 私道 | 私道負担面積:4.11㎡(持分:1/5) |
| 権利 | 所有権 |
| 借地権 | - |
| 現況 | 未完成 |
| 引渡時期 | 2025年12月下旬予定 |
| 引渡条件 | |
| 取引態様 | 媒介 |
| 管理コード | ST410116 |
設備・特記
《設備》:BELS/省エネ基準適合/上水道/小学校徒歩10分以内/複層ガラス/下水道/開発分譲地内/カウンターキッチン/クローゼット/システムキッチン/追い焚き風呂/3口コンロ/LDK20畳以上/照明器具/24時間換気システム/駐車場3台分/ワイドバルコニー/都市ガス/整形地/全居室収納/トイレ2ヶ所/温水洗浄便座/食器洗浄乾燥機/床下収納/ウォークインクローゼット/全居室フローリング
《物件の特徴》:-
備考
《その他制限》:小規模開発
《その他》:備考:全5棟 太陽光パネル設置!敷地40坪〜 カースペース2台以上。長期優良住宅 住宅性能評価W取得 LDK18帖以上 食洗器つき。収納豊富。大型収納も細やかな収納も豊富なので家具配置も納得。各棟、広いバルコニーも魅力です。落ち着いた住宅街に誕生! / 国土法届出:不要
《建築確認番号》:第25UDI1W建05903号
※詳細については、Webサイトにてご確認ください。現状と異なる場合は、現状を優先させていただきます。
※取引態様の欄に「媒介」と表示された物件は「仲介物件」です。ご成約の際には仲介手数料を申し受けます。
情報更新日|2025年11月4日
次回更新予定|2025年11月20日