3,580万円
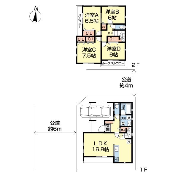
4LDK
種別 戸建て
建物面積 113.44㎡(壁芯)
おすすめ
ポイント
小、中学校は徒歩圏内。買い物施設も充実のエリア。2階建4LDK
全居室6帖以上。全居室ペアガラスやルーフバルコニー採用。
生活をサポートする充実設備や宅配BOXを標準装備。
地盤サポートシステム(10年間)採用。フラット35S対応物件。
| 築年月 | 2024年10月 |
|---|---|
| 構造 | 木造 |
| 階数 | 2階建て |
| 土地面積 | 92.59㎡ (28.00坪) |
| 駐車スペース | 駐車場あり( 1台) |
| 都市計画 | 市街化区域 |
| 用途地域 | 第一種住居地域 |
| 建蔽率/容積率 | 60% / 200% |
| 地目 | 宅地 |
| 区画整理 | - |
| 接道 | |
| 私道 | なし |
| 権利 | 所有権 |
| 借地権 | - |
| 現況 | 空室(入居歴無) |
| 引渡時期 | 即時 |
| 引渡条件 | |
| 取引態様 | 媒介 |
| 管理コード | ST410811 |
設備・特記
《設備》:上水道/前道6m以上/フラット35S適合・利用可/小学校徒歩10分以内/複層ガラス/下水道/カウンターキッチン/クローゼット/浴室暖房/システムキッチン/追い焚き風呂/3口コンロ/浴室乾燥機/バルコニー/照明器具/24時間換気システム/バルコニー2面以上/ルーフバルコニー/ビルトインガレージ/南面バルコニー/都市ガス/区画整理地内/整形地/LDK15畳以上/浄水器/全居室収納/地盤調査書有/トイレ2ヶ所/スマートキー/温水洗浄便座/食器洗浄乾燥機/床下収納/全居室フローリング/TVモニター付きインターホン/角地
《物件の特徴》:-
備考
《その他制限》:22条区域・下水処理区域・芝東第6土地区画整理事業施工中
《その他》:備考:小、中学校は徒歩圏内。買い物施設も充実のエリア。2階建4LDK。全居室6帖以上。全居室ペアガラスやルーフバルコニー採用。生活をサポートする充実設備や宅配BOXを標準装備。地盤サポートシステム(10年間)採用。フラット35S対応物件。 / 国土法届出:不要
《建築確認番号》:SJK-KX235212920号
※詳細については、Webサイトにてご確認ください。現状と異なる場合は、現状を優先させていただきます。
※取引態様の欄に「媒介」と表示された物件は「仲介物件」です。ご成約の際には仲介手数料を申し受けます。
情報更新日|2025年10月24日
次回更新予定|2025年11月9日