4,280万円
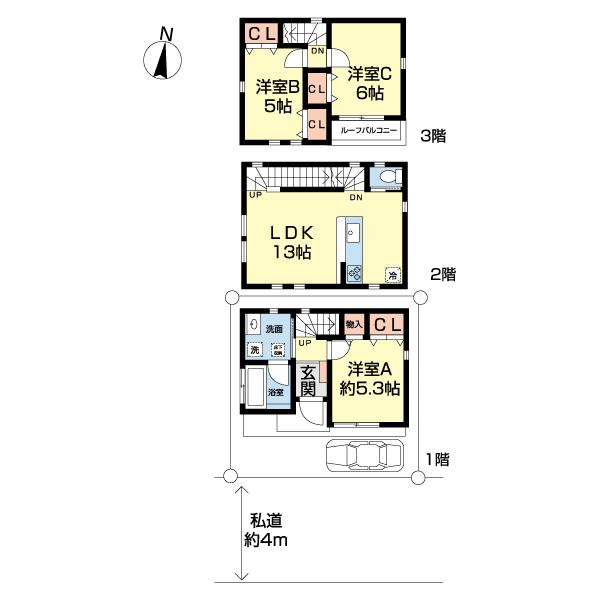
3LDK
種別 戸建て
建物面積 73.48㎡(壁芯)
おすすめ
ポイント
通勤・レジャーに快適アクセス 蕨駅まで徒歩9分!3階建3LDK
商業施設や教育施設も身近で、公園も点在し暮らしやすい環境。
前面南側道路につき陽射しのぬくもりを感じられる採光重視の設計。
食洗機、浴室乾燥機など生活をサポートする設備も充実。
| 築年月 | 2025年3月 |
|---|---|
| 構造 | 木造 |
| 階数 | 3階建て |
| 土地面積 | 51.33㎡ (15.52坪) |
| 駐車スペース | 駐車場あり( 1台) |
| 都市計画 | 市街化区域 |
| 用途地域 | 第二種住居地域 |
| 建蔽率/容積率 | 60% / 160% |
| 地目 | 宅地 |
| 区画整理 | - |
| 接道 | |
| 私道 | 私道負担面積:14.55㎡(持分:1/1) |
| 権利 | 所有権 |
| 借地権 | - |
| 現況 | 空室(入居歴無) |
| 引渡時期 | 即時 |
| 引渡条件 | |
| 取引態様 | 媒介 |
| 管理コード | ST410815 |
設備・特記
《設備》:上水道/南道路/フラット35S適合・利用可/複層ガラス/下水道/カウンターキッチン/クローゼット/浴室暖房/システムキッチン/追い焚き風呂/3口コンロ/浴室乾燥機/バルコニー/照明器具/24時間換気システム/ルーフバルコニー/南面バルコニー/都市ガス/整形地/南向き/浄水器/全居室収納/地盤調査書有/スマートキー/温水洗浄便座/食器洗浄乾燥機/床下収納/全居室フローリング/TVモニター付きインターホン/全室南向き
《物件の特徴》:-
備考
《その他制限》:準防火地域・下水道処理区域・芝樋ノ爪及び芝4,5丁目地区地区計画
《その他》:備考:通勤・レジャーに快適アクセス 蕨駅まで徒歩9分!3階建3LDK。商業施設や教育施設も身近で、公園も点在し暮らしやすい環境。前面南側道路につき陽射しのぬくもりを感じられる採光重視の設計。食洗機、浴室乾燥機など生活をサポートする設備も充実。 / 国土法届出:不要
《建築確認番号》:第SJK-KX245111740号
※詳細については、Webサイトにてご確認ください。現状と異なる場合は、現状を優先させていただきます。
※取引態様の欄に「媒介」と表示された物件は「仲介物件」です。ご成約の際には仲介手数料を申し受けます。
情報更新日|2025年10月24日
次回更新予定|2025年11月9日