3,890万円
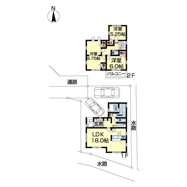
3LDK
種別 戸建て
建物面積 97.71㎡(壁芯)
おすすめ
ポイント
人気の「川越」駅が利用可能!目的地に合わせた経路を選べます。
各棟17帖以上のLDKは、ご家族みんなでくつろげる空間を実現!
家事ラクの浴室乾燥暖房機など、暮らしの快適さを彩る仕様が充実!
建物完成済みです!実際のお部屋や周辺環境をご覧いただけます。
| 築年月 | 2025年5月 |
|---|---|
| 構造 | 木造 |
| 階数 | 2階建て |
| 土地面積 | 129.98㎡ (39.31坪) |
| 駐車スペース | 駐車場あり( 2台) |
| 都市計画 | 市街化区域 |
| 用途地域 | 第一種中高層住居専用地域 |
| 建蔽率/容積率 | 60% / 200% |
| 地目 | 宅地 |
| 区画整理 | - |
| 接道 | 北側4.0m公道に接道 |
| 私道 | なし |
| 権利 | 所有権 |
| 借地権 | - |
| 現況 | 空室(入居歴無) |
| 引渡時期 | 即時 |
| 引渡条件 | |
| 取引態様 | 媒介 |
| 管理コード | ST410841 |
設備・特記
《設備》:都市ガス/上水道/LDK15畳以上/下水道/カウンターキッチン/クローゼット/浄水器/全居室収納/温水洗浄便座/浴室暖房/洗髪洗面化粧台/システムキッチン/追い焚き風呂/浴室乾燥機/バルコニー/24時間換気システム/駐車場2台分/TVモニター付きインターホン
《物件の特徴》:-
備考
《その他》:備考:人気の「川越」駅が利用可能!目的地に合わせた経路を選べます。各棟17帖以上のLDKは、ご家族みんなでくつろげる空間を実現!家事ラクの浴室乾燥暖房機など、暮らしの快適さを彩る仕様が充実!建物完成済みです!実際のお部屋や周辺環境をご覧いただけます。 / 国土法届出:不要
《建築確認番号》:第24UDI1W建08033号
※詳細については、Webサイトにてご確認ください。現状と異なる場合は、現状を優先させていただきます。
※取引態様の欄に「媒介」と表示された物件は「仲介物件」です。ご成約の際には仲介手数料を申し受けます。
情報更新日|2025年10月14日
次回更新予定|2025年11月7日