4,180万円
3LDK
種別 戸建て
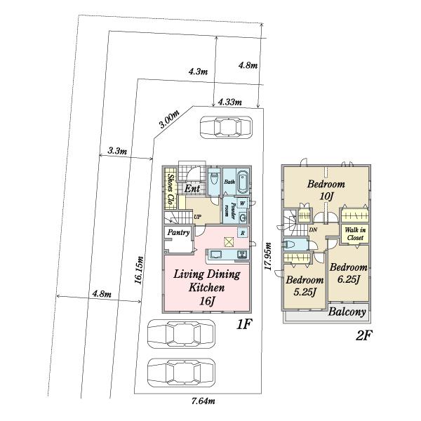
建物面積 97.70㎡(壁芯)
おすすめ
ポイント
全6棟 敷地37.8坪以上 カースペース2台以上可能。
国道254号線・463号線に程近いお車便利なロケーションです。
家族がゆっくり寛げる開放的な心地よさを追求した15帖以上LDK
開放感に恵まれた、第一種低層住居専用地域の静穏な地。
| 築年月 | 2025年12月 |
|---|---|
| 構造 | 木造 |
| 階数 | 2階建て |
| 土地面積 | 125.11㎡ (37.84坪) |
| 駐車スペース | 駐車場あり( 3台) |
| 都市計画 | 市街化区域 |
| 用途地域 | 第一種低層住居専用地域 |
| 建蔽率/容積率 | 50% / 80% |
| 地目 | 宅地 |
| 区画整理 | - |
| 接道 | |
| 私道 | なし |
| 権利 | 所有権 |
| 借地権 | - |
| 現況 | 未完成 |
| 引渡時期 | 2025年12月下旬予定 |
| 引渡条件 | |
| 取引態様 | 媒介 |
| 管理コード | ST410897 |
設備・特記
《設備》:上水道/BSアンテナ/小学校徒歩10分以内/複層ガラス/下水道/カウンターキッチン/クローゼット/浴室暖房/システムキッチン/追い焚き風呂/浴室乾燥機/24時間換気システム/駐車場3台分/ワイドバルコニー/都市ガス/長期優良住宅/LDK15畳以上/閑静な住宅街/パントリー/全居室収納/トイレ2ヶ所/温水洗浄便座/洗髪洗面化粧台/床下収納/ウォークインクローゼット/TVモニター付きインターホン/角地
《物件の特徴》:-
備考
《その他制限》:水子地区地区計画
《その他》:備考:全6棟 敷地37.8坪以上 カースペース2台以上可能。国道254号線・463号線に程近いお車便利なロケーションです。家族がゆっくり寛げる開放的な心地よさを追求した15帖以上LDK。開放感に恵まれた、第一種低層住居専用地域の静穏な地。 / 国土法届出:不要
《建築確認番号》:第HPA-25-10487-1号
※詳細については、Webサイトにてご確認ください。現状と異なる場合は、現状を優先させていただきます。
※取引態様の欄に「媒介」と表示された物件は「仲介物件」です。ご成約の際には仲介手数料を申し受けます。
情報更新日|2025年10月21日
次回更新予定|2025年11月10日