6,180万円
4LDK
種別 戸建て
建物面積 106.82㎡(壁芯)
おすすめ
ポイント
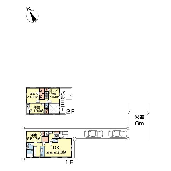
全2棟 商業施設や教育施設も身近な子育て環境良好エリア。
2階建。LDKは広々とした20帖以上。大容量のスライド収納。
駐車2台可能。前面道路も幅が広く車のすれ違いにも余裕があります
2面バルコニー付で通風良好!地盤サポートシステム(20年間)。
| 築年月 | 2025年10月 |
|---|---|
| 構造 | 木造 |
| 階数 | 2階建て |
| 土地面積 | 124.18㎡ (37.56坪) |
| 駐車スペース | 駐車場あり( 2台) |
| 都市計画 | 市街化区域 |
| 用途地域 | 第一種中高層住居専用地域 |
| 建蔽率/容積率 | 60% / 200% |
| 地目 | 宅地 |
| 区画整理 | - |
| 接道 | |
| 私道 | なし |
| 権利 | 所有権 |
| 借地権 | - |
| 現況 | 空室(入居歴無) |
| 引渡時期 | 即時 |
| 引渡条件 | |
| 取引態様 | 媒介 |
| 管理コード | ST410923 |
設備・特記
《設備》:都市ガス/上水道/前道6m以上/小学校徒歩10分以内/下水道/カウンターキッチン/クローゼット/全居室収納/地盤調査書有/トイレ2ヶ所/温水洗浄便座/システムキッチン/床下収納/追い焚き風呂/3口コンロ/ウォークインクローゼット/LDK20畳以上/バルコニー/全居室フローリング/駐車場2台分/バルコニー2面以上
《物件の特徴》:-
備考
《その他制限》:準防火地域
《その他》:備考:全2棟 商業施設や教育施設も身近な子育て環境良好エリア。2階建。LDKは広々とした20帖以上。大容量のスライド収納。駐車2台可能。前面道路も幅が広く車のすれ違いにも余裕があります。2面バルコニー付で通風良好!地盤サポートシステム(20年間)。 / 国土法届出:不要
《建築確認番号》:第KBI-TKN25-10-0608号
※詳細については、Webサイトにてご確認ください。現状と異なる場合は、現状を優先させていただきます。
※取引態様の欄に「媒介」と表示された物件は「仲介物件」です。ご成約の際には仲介手数料を申し受けます。
情報更新日|2025年10月24日
次回更新予定|2025年11月8日