5,480万円
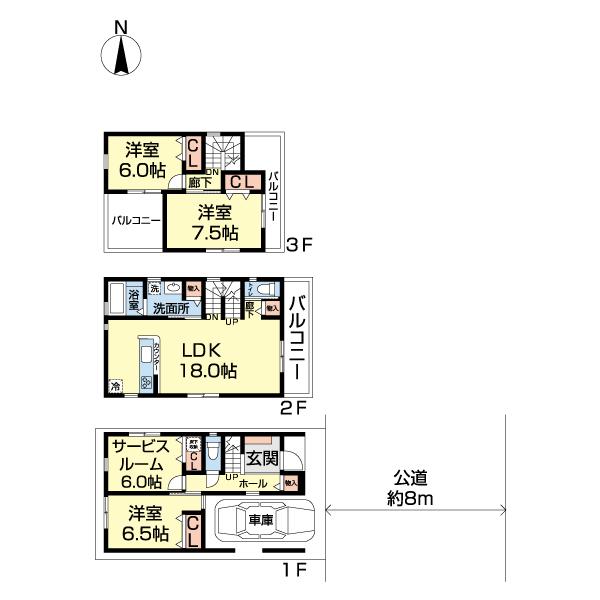
3SLDK
種別 戸建て
建物面積 122.15㎡(壁芯)
おすすめ
ポイント
全3棟 商業施設や教育施設も身近なエリア。3階建プラン。
心地よい室内空間ゆとりのLDK18帖。対面キッチンです。
24時間換気システム 複層ガラス 浴室乾燥暖房機。
フラット35S(プランA)利用可能。まもりすまい保険10年保証
| 築年月 | 2026年1月 |
|---|---|
| 構造 | 木造 |
| 階数 | 3階建て |
| 土地面積 | 72.98㎡ (22.07坪) |
| 駐車スペース | 駐車場あり( 1台) |
| 都市計画 | 市街化区域 |
| 用途地域 | 第一種住居地域 |
| 建蔽率/容積率 | 60% / 200% |
| 地目 | 宅地 |
| 区画整理 | - |
| 接道 | |
| 私道 | なし |
| 権利 | 所有権 |
| 借地権 | - |
| 現況 | 未完成 |
| 引渡時期 | 2026年1月下旬予定 |
| 引渡条件 | |
| 取引態様 | 媒介 |
| 管理コード | ST410998 |
設備・特記
《設備》:上水道/前道6m以上/フラット35S適合・利用可/小学校徒歩10分以内/複層ガラス/下水道/カウンターキッチン/クローゼット/浴室暖房/システムキッチン/追い焚き風呂/3口コンロ/浴室乾燥機/バルコニー/LDK18畳以上/24時間換気システム/バルコニー2面以上/ビルトインガレージ/都市ガス/整形地/全居室収納/トイレ2ヶ所/温水洗浄便座/床下収納/全居室フローリング/TVモニター付きインターホン
《物件の特徴》:-
備考
《その他制限》:準防火地域
《その他》:備考:全3棟 商業施設や教育施設も身近なエリア。3階建プラン。心地よい室内空間ゆとりのLDK18帖。対面キッチンです。24時間換気システム 複層ガラス 浴室乾燥暖房機。フラット35S(プランA)利用可能。まもりすまい保険10年保証。 / 国土法届出:不要
《建築確認番号》:第25UDI1C建03839号
※詳細については、Webサイトにてご確認ください。現状と異なる場合は、現状を優先させていただきます。
※取引態様の欄に「媒介」と表示された物件は「仲介物件」です。ご成約の際には仲介手数料を申し受けます。
情報更新日|2025年10月24日
次回更新予定|2025年11月8日