5,080万円
3LDK
種別 マンション
専有面積 70.20㎡(壁芯)
おすすめ
ポイント
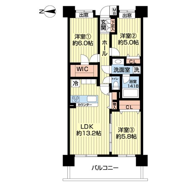
総戸数212世帯のビッグコミュニティ 14階建て 2階 西向き
効率よく収納可能なウォークインクローゼット設置で機能性実現。
心地良いLDK13.2帖 食洗機・浄水器付き対面キッチン
1坪バス 浴室乾燥機 ペット飼育可 モニター付きオートロック
| 築年月 | 2002年5月 |
|---|---|
| 構造 | 鉄筋コンクリート造 |
| 所在階 | 14階建ての2階 |
| 総戸数 | 212戸 |
| 向き | 西 |
| バルコニー面積 | 12.00㎡ |
| 駐車場 | 空き無し |
| 施工会社 | (株)熊谷組 |
| 管理会社 | 株式会社東急コミュニティー |
| 管理形態 | 全部委託(日勤) |
| 権利 | 所有権 |
| 借地権 | - |
| 現況 | 空室(入居歴有) |
| 引渡時期 | 相談 |
| 引渡条件 | |
| 管理費 | 8,500円/月 |
| 修繕積立金 | 14,440円/月 |
| 取引態様 | 媒介 |
| 管理コード | ST411009 |
設備・特記
《設備》:リノベーション/スーパー徒歩10分以内/小学校徒歩10分以内/室内洗濯機置場/クローゼット/カウンターキッチン/浴室暖房/システムキッチン/追い焚き風呂/浴室乾燥機/照明器具/ワイドバルコニー/都市ガス/ペット相談可/2面採光/浄水器/全居室収納/温水洗浄便座/食器洗浄乾燥機/ディスポーザー/バス1坪以上/ウォークインクローゼット/エレベータ/出窓/全居室フローリング/宅配BOX/モニタ付オートロック/防犯カメラ
《物件の特徴》:-
備考
《その他》:施工会社((株)熊谷組) / 管理会社(株式会社東急コミュニティー) / 管理組合:あり / 備考:総戸数212世帯のビッグコミュニティ 14階建て 2階 西向き 効率よく収納可能なウォークインクローゼット設置で機能性実現。 心地良いLDK13.2帖 食洗機・浄水器付き対面キッチン 1坪バス 浴室乾燥機 ペット飼育可 モニター付きオートロック / 用途地域:準工業地域 / 国土法届出:不要 / 小型犬可
※詳細については、Webサイトにてご確認ください。現状と異なる場合は、現状を優先させていただきます。
※取引態様の欄に「媒介」と表示された物件は「仲介物件」です。ご成約の際には仲介手数料を申し受けます。
情報更新日|2025年10月21日
次回更新予定|2025年11月11日