4,480万円
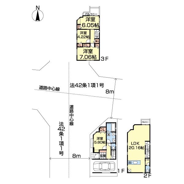
4LDK
種別 戸建て
建物面積 101.92㎡(壁芯)
おすすめ
ポイント
全1棟 教育・商業・公園が揃う子育て環境に便利なエリアです。
3階建・4LDK 角地につき陽当たり・通風良好。ビルトイン車庫
家族の寛ぎのプライベート時間を過ごす、ゆとりのLDK20帖。
大容量のスライド収納 全室ペアガラス 24時間換気 浴室乾燥機
| 築年月 | 2025年9月 |
|---|---|
| 構造 | 木造 |
| 階数 | 3階建て |
| 土地面積 | 57.53㎡ (17.40坪) |
| 駐車スペース | 駐車場あり( 1台) |
| 都市計画 | 市街化区域 |
| 用途地域 | 第一種住居地域 |
| 建蔽率/容積率 | 60% / 200% |
| 地目 | 宅地 |
| 区画整理 | - |
| 接道 | |
| 私道 | なし |
| 権利 | 所有権 |
| 借地権 | - |
| 現況 | 空室(入居歴無) |
| 引渡時期 | 即時 |
| 引渡条件 | |
| 取引態様 | 媒介 |
| 管理コード | ST411014 |
設備・特記
《設備》:上水道/前道6m以上/フラット35S適合・利用可/小学校徒歩10分以内/複層ガラス/下水道/カウンターキッチン/クローゼット/浴室暖房/システムキッチン/追い焚き風呂/3口コンロ/浴室乾燥機/LDK20畳以上/バルコニー/24時間換気システム/ビルトインガレージ/都市ガス/整形地/全居室収納/地盤調査書有/トイレ2ヶ所/温水洗浄便座/洗髪洗面化粧台/床下収納/全居室フローリング/TVモニター付きインターホン/角地
《物件の特徴》:-
備考
《その他制限》:準防火地域
《その他》:備考:全1棟 教育・商業・公園が揃う子育て環境に便利なエリアです。3階建・4LDK 角地につき陽当たり・通風良好。ビルトイン車庫。家族の寛ぎのプライベート時間を過ごす、ゆとりのLDK20帖。大容量のスライド収納 全室ペアガラス 24時間換気 浴室乾燥機。 / 国土法届出:不要
《建築確認番号》:第KBI-TKN25-10-0429号
※詳細については、Webサイトにてご確認ください。現状と異なる場合は、現状を優先させていただきます。
※取引態様の欄に「媒介」と表示された物件は「仲介物件」です。ご成約の際には仲介手数料を申し受けます。
情報更新日|2025年10月24日
次回更新予定|2025年11月8日