3,980万円
2SLDK
種別 戸建て
建物面積 97.49㎡(壁芯)
おすすめ
ポイント
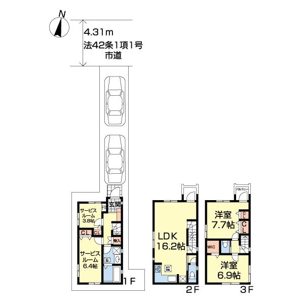
全3棟 周辺環境充実!2路線利用可能な南浦和駅まで徒歩15分。
3階建プラン 2SLDK 駐車スペース2台分付き。
ゆとりのLDK16帖。壁付けキッチンなので空間を広く使えます。
大容量のスライド収納 全室ペアガラス 24時間換気 浴室乾燥機
| 築年月 | 2025年7月 |
|---|---|
| 構造 | 木造 |
| 階数 | 3階建て |
| 土地面積 | 76.94㎡ (23.27坪) |
| 駐車スペース | 駐車場あり( 2台) |
| 都市計画 | 市街化区域 |
| 用途地域 | 第一種住居地域 |
| 建蔽率/容積率 | 60% / 200% |
| 地目 | 雑種地 |
| 区画整理 | - |
| 接道 | |
| 私道 | なし |
| 権利 | 所有権 |
| 借地権 | - |
| 現況 | 空室(入居歴無) |
| 引渡時期 | 即時 |
| 引渡条件 | |
| 取引態様 | 媒介 |
| 管理コード | ST411041 |
設備・特記
《設備》:上水道/フラット35S適合・利用可/小学校徒歩10分以内/複層ガラス/下水道/クローゼット/浴室暖房/システムキッチン/追い焚き風呂/3口コンロ/浴室乾燥機/バルコニー/24時間換気システム/駐車場2台分/都市ガス/LDK15畳以上/全居室収納/地盤調査書有/トイレ2ヶ所/温水洗浄便座/洗髪洗面化粧台/床下収納/ウォークインクローゼット/全居室フローリング/TVモニター付きインターホン
《物件の特徴》:-
備考
《その他制限》:高度地区・法22条区域
《その他》:備考:全3棟 周辺環境充実!2路線利用可能な南浦和駅まで徒歩15分。3階建プラン 2SLDK 駐車スペース2台分付き。ゆとりのLDK16帖。壁付けキッチンなので空間を広く使えます。大容量のスライド収納 全室ペアガラス 24時間換気 浴室乾燥機。 / 国土法届出:不要
《建築確認番号》:第KS125-3120-50092号
※詳細については、Webサイトにてご確認ください。現状と異なる場合は、現状を優先させていただきます。
※取引態様の欄に「媒介」と表示された物件は「仲介物件」です。ご成約の際には仲介手数料を申し受けます。
情報更新日|2025年10月27日
次回更新予定|2025年11月10日