6,299万円
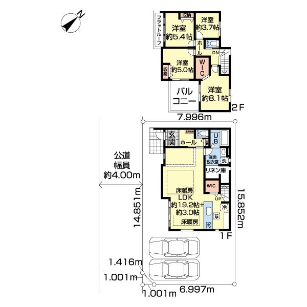
4LDK
種別 戸建て
建物面積 104.95㎡(壁芯)
おすすめ
ポイント
新築分譲住宅全6棟。並列2台駐車可能。土地120㎡超。
スカイツリーライン急行停車「越谷」駅徒歩10分以内の好立地。
南向きのリビング+床暖房。ガス仕様で足元から空間を温めます。
外出・帰宅の際にさっと取り出せ、家族みんなで使えるWIC。
| 築年月 | 2026年4月 |
|---|---|
| 構造 | 木造 |
| 階数 | 2階建て |
| 土地面積 | 126.78㎡ (38.35坪) |
| 駐車スペース | 駐車場あり( 2台) |
| 都市計画 | 市街化区域 |
| 用途地域 | 第一種住居地域 |
| 建蔽率/容積率 | 60% / 160% |
| 地目 | 宅地 |
| 区画整理 | - |
| 接道 | 南西側4.0m公道に14.8m接道 |
| 私道 | なし |
| 権利 | 所有権 |
| 借地権 | - |
| 現況 | 未完成 |
| 引渡時期 | 2026年4月下旬予定 |
| 引渡条件 | |
| 取引態様 | 媒介 |
| 管理コード | ST411202 |
設備・特記
《設備》:都市ガス/上水道/床暖房/フラット35S適合・利用可/下水道/カウンターキッチン/クローゼット/浄水器/全居室収納/温水洗浄便座/食器洗浄乾燥機/システムキッチン/床下収納/3口コンロ/追い焚き風呂/浴室乾燥機/ウォークインクローゼット/LDK20畳以上/バルコニー/24時間換気システム/駐車場2台分/TVモニター付きインターホン
《物件の特徴》:-
備考
《その他制限》:法第22条区域、越谷市まちの整備に関する条例
《その他》:販売戸数:6戸 / 備考:新築分譲住宅全6棟。並列2台駐車可能。土地120㎡超。スカイツリーライン急行停車「越谷」駅徒歩10分以内の好立地。南向きのリビング+床暖房。ガス仕様で足元から空間を温めます。外出・帰宅の際にさっと取り出せ、家族みんなで使えるWIC。 / 国土法届出:不要
《建築確認番号》:第25UDI1W建06496号
※詳細については、Webサイトにてご確認ください。現状と異なる場合は、現状を優先させていただきます。
※取引態様の欄に「媒介」と表示された物件は「仲介物件」です。ご成約の際には仲介手数料を申し受けます。
情報更新日|2025年10月26日
次回更新予定|2025年11月10日