5,990万円
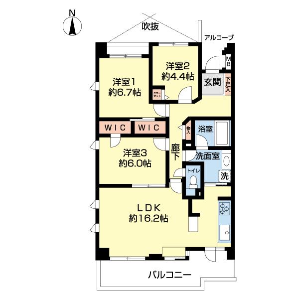
3LDK
種別 マンション
専有面積 77.50㎡(壁芯)
おすすめ
ポイント
新規リノベーション済、収納豊富な広々3LDK。最上階角住戸!
開放感のあるLDK広々16帖、便利な食洗器、浄水器付きです♪
人感センサー・防犯カメラ・モニターホン・オートロック、安心設備
落ち着いた住宅街で緑多く、生活利便性も高い魅力のエリアです。
| 築年月 | 1996年3月 |
|---|---|
| 構造 | 鉄筋コンクリート造 |
| 所在階 | 地下2階・地上4階建ての4階 |
| 総戸数 | 39戸 |
| 向き | 南 |
| バルコニー面積 | 11.75㎡ |
| 駐車場 | 駐車場有り 16,000円/月 |
| 施工会社 | 飛鳥建設株式会社 |
| 管理会社 | 野村不動産パートナーズ株式会社 |
| 管理形態 | 全部委託(日勤) |
| 権利 | 所有権 |
| 借地権 | - |
| 現況 | 空室(入居歴有) |
| 引渡時期 | 相談 |
| 引渡条件 | |
| 管理費 | 11,180円/月 |
| 修繕積立金 | 19,410円/月 |
| 取引態様 | 媒介 |
| 管理コード | ST411244 |
設備・特記
《設備》:陽当り良好/CATV/リノベーション/BSアンテナ/フラット35S適合・利用可/小学校徒歩10分以内/室内洗濯機置場/インターネット対応/クローゼット/システムキッチン/追い焚き風呂/浴室乾燥機/バルコニー/最上階/南面バルコニー/角部屋/都市ガス/ペット相談可/南向き/三面採光/閑静な住宅街/LDK15畳以上/浄水器/全居室収納/温水洗浄便座/食器洗浄乾燥機/ウォークインクローゼット/エレベータ/宅配BOX/全居室フローリング/オートロック/TVモニター付きインターホン/防犯カメラ
《物件の特徴》:-
備考
《その他月額費用》:トランクルーム/敷地内有:3000円
《その他》:施工会社(飛鳥建設株式会社) / 管理会社(野村不動産パートナーズ株式会社) / 管理組合:あり / 備考:新規リノベーション済、収納豊富な広々3LDK。最上階角住戸!開放感のあるLDK広々16帖、便利な食洗器、浄水器付きです♪人感センサー・防犯カメラ・モニターホン・オートロック、安心設備落ち着いた住宅街で緑多く、生活利便性も高い魅力のエリアです。 / 用途地域:第一種低層住居専用地域 / 国土法届出:不要 / 小型犬可 / 猫可
※詳細については、Webサイトにてご確認ください。現状と異なる場合は、現状を優先させていただきます。
※取引態様の欄に「媒介」と表示された物件は「仲介物件」です。ご成約の際には仲介手数料を申し受けます。
情報更新日|2025年10月29日
次回更新予定|2025年11月13日