4,780万円
3LDK
種別 戸建て
建物面積 58.32㎡(壁芯)
おすすめ
ポイント
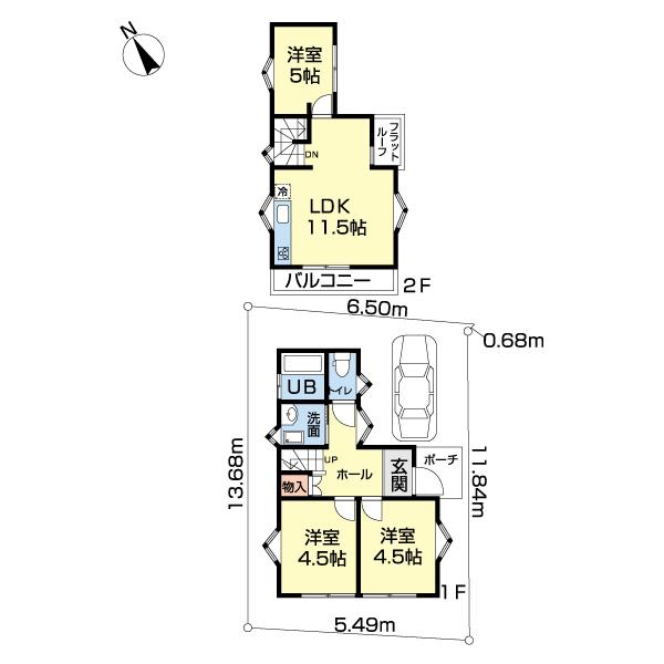
新宿まで一本で行ける人気の京王線エリア 3LDK
風通しの良いワイドバルコニー 出窓有の明るい洋室
プライバシーの保たれた2階の心地良いリビング
住まい全体で暮らしやすさを追求。永く快適な毎日を過ごせる住空間
| 築年月 | 2025年10月 |
|---|---|
| 構造 | 木造 |
| 階数 | 2階建て |
| 土地面積 | 73.45㎡ (22.21坪) |
| 駐車スペース | 駐車場あり( 1台) |
| 都市計画 | 市街化区域 |
| 用途地域 | 第一種低層住居専用地域 |
| 建蔽率/容積率 | 40% / 80% |
| 地目 | 宅地 |
| 区画整理 | - |
| 接道 | 北東側4.0m公道に6.5m接道 |
| 私道 | なし |
| 権利 | 所有権 |
| 借地権 | - |
| 現況 | 空室(入居歴無) |
| 引渡時期 | 相談 |
| 引渡条件 | |
| 取引態様 | 媒介 |
| 管理コード | ST411292 |
設備・特記
《設備》:温水洗浄便座/都市ガス/システムキッチン/上水道/追い焚き風呂/閑静な住宅街/小学校徒歩10分以内/下水道/クローゼット/出窓/ワイドバルコニー
《物件の特徴》:-
備考
《その他制限》:第一種高度地区 法22条指定区域
《その他》:販売戸数:1戸 / 備考:新宿まで一本で行ける人気の京王線エリア 3LDK 風通しの良いワイドバルコニー 出窓有の明るい洋室 プライバシーの保たれた2階の心地良いリビング 住まい全体で暮らしやすさを追求。永く快適な毎日を過ごせる住空間 / 国土法届出:不要
《建築確認番号》:第25UDI1S建00634号
※詳細については、Webサイトにてご確認ください。現状と異なる場合は、現状を優先させていただきます。
※取引態様の欄に「媒介」と表示された物件は「仲介物件」です。ご成約の際には仲介手数料を申し受けます。
情報更新日|2025年10月28日
次回更新予定|2025年11月16日