3,990万円
3SLDK
種別 戸建て
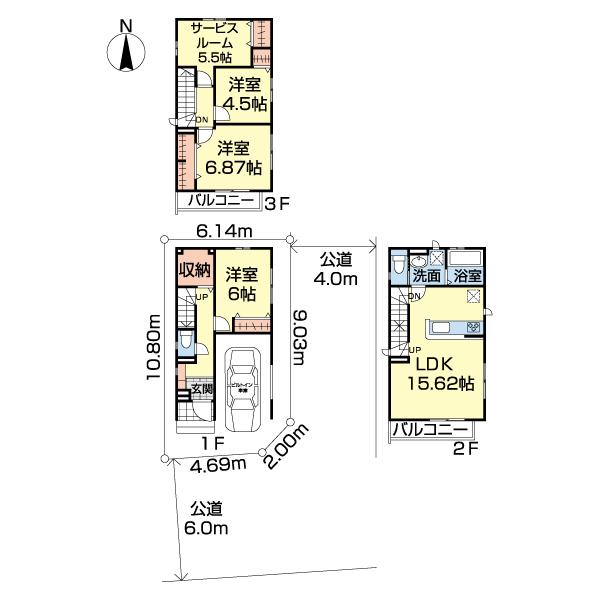
建物面積 113.71㎡(壁芯)
おすすめ
ポイント
デザイン性と機能性に優れた優美なアーバンデザイン住宅全5棟。
南6m×東4mの2方公道面土地区画整理地内、都市ガス・本下水。
大容量収納2帖。水廻り集中設計。会話が増えるリビングイン階段。
アウトドア用品収納などにも使える使い方自由なサービスルーム有。
| 築年月 | 2025年12月 |
|---|---|
| 構造 | 木造 |
| 階数 | 3階建て |
| 土地面積 | 63.70㎡ (19.26坪) |
| 駐車スペース | 駐車場あり( 1台) |
| 都市計画 | 市街化区域 |
| 用途地域 | 第一種住居地域 |
| 建蔽率/容積率 | 60% / 200% |
| 地目 | 宅地 |
| 区画整理 | - |
| 接道 | 東側4.0m公道に9.0m接道/南側6.0m公道に6.6m接道 |
| 私道 | なし |
| 権利 | 所有権 |
| 借地権 | - |
| 現況 | 未完成 |
| 引渡時期 | 2025年12月上旬予定 |
| 引渡条件 | |
| 取引態様 | 媒介 |
| 管理コード | ST411608 |
設備・特記
《設備》:南道路/上水道/前道6m以上/小学校徒歩10分以内/下水道/複層ガラス/カウンターキッチン/クローゼット/浴室暖房/システムキッチン/3口コンロ/浴室乾燥機/24時間換気システム/バルコニー2面以上/南面バルコニー/都市ガス/区画整理地内/南向き/設計住宅性能評価書/三面採光/LDK15畳以上/納戸/浄水器/全居室収納/トイレ2ヶ所/温水洗浄便座/洗髪洗面化粧台/バス1坪以上/TVモニター付きインターホン/角地
《物件の特徴》:-
備考
《その他制限》:景観法
《その他》:販売戸数:5戸 / 備考:デザイン性と機能性に優れた優美なアーバンデザイン住宅全5棟。南6m×東4mの2方公道面土地区画整理地内、都市ガス・本下水。大容量収納2帖。水廻り集中設計。会話が増えるリビングイン階段。アウトドア用品収納などにも使える使い方自由なサービスルーム有。 / 国土法届出:不要
《建築確認番号》:第HPA-25-02972-1号
※詳細については、Webサイトにてご確認ください。現状と異なる場合は、現状を優先させていただきます。
※取引態様の欄に「媒介」と表示された物件は「仲介物件」です。ご成約の際には仲介手数料を申し受けます。
情報更新日|2025年11月11日
次回更新予定|2025年11月28日