4,490万円
34.23坪
種別 土地
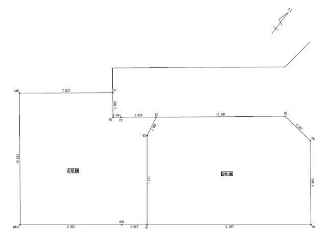
土地面積 113.19㎡
おすすめ
ポイント
【建築条件なし】住宅用地をお探しの方へお勧め、更地引き渡し
整形地で建築プランも建てやすいのも魅力◎
駅徒歩10分以内!見沼代親水公園駅または舎人駅利用可能です
近くにスーパーやコンビニあり、閑静な住宅街で快適ライフを
| 都市計画 | 市街化区域 |
|---|---|
| 用途地域 | 第一種低層住居専用地域 |
| 建蔽率/容積率 | 50% / 150% |
| 地目 | 宅地 |
| 最適用途 | 住宅用地 |
| 区画整理 | - |
| 接道 | 北側4.8m公道に接道 |
| 私道 | 私道負担面積:77.0㎡(持分:14/33) |
| 権利 | 所有権 |
| 借地権 | - |
| 現況 | 更地 |
| 引渡時期 | 相談 |
| 引渡条件 | 現況渡し |
| 取引態様 | 媒介 |
| 管理コード | ST411769 |
設備・特記
《設備》:整形地/閑静な住宅街
《物件の特徴》:【建築条件なし】住宅用地をお探しの方へお勧め、更地引き渡し
備考
《その他》:販売戸数( 2区画)
本物件は、オークション(入札)物件です。表示価格は「最低売却価格」です。
最低売却価格を下回る金額での入札も可能ですが、交渉の結果、契約に至らない可能性があります。
物件を見学の上、専用用紙にて入札をお願いします。
最も高い金額で入札されたお客様が落札(交渉)権を獲得します。詳しくは担当店舗までお問い合わせ下さい。
入札受付締切日時: 2025年12月7日10時30分
入札会場:ルミエールグランデ流山おおたかの森
オークションの流れについては、ホームページ(https://www.myhome-auction.com/)でご確認ください。
※詳細については、Webサイトにてご確認ください。現状と異なる場合は、現状を優先させていただきます。
※取引態様の欄に「媒介」と表示された物件は「仲介物件」です。ご成約の際には仲介手数料を申し受けます。
情報更新日|2025年11月16日
次回更新予定|2025年11月30日