4,580万円
2SLDK
種別 戸建て
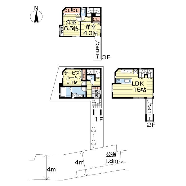
建物面積 86.42㎡(壁芯)
おすすめ
ポイント
全3邸 最新設備や個性あるプランが魅力です。地盤保証20年!
3階建 バルコニー2か所 LDK15帖以上 食洗器・床暖房付
収納スペースを最大限に確保。機能的な室内仕様で団欒のある暮らし
浄水機付対面キッチン カラーTVモニターホン 複層ガラス採用
| 築年月 | 2025年11月 |
|---|---|
| 構造 | 木造 |
| 階数 | 3階建て |
| 土地面積 | 57.30㎡ (17.33坪) |
| 駐車スペース | - |
| 都市計画 | 市街化区域 |
| 用途地域 | 第一種住居地域 |
| 建蔽率/容積率 | 60% / 160% |
| 地目 | 宅地 |
| 区画整理 | - |
| 接道 | |
| 私道 | なし |
| 権利 | 所有権 |
| 借地権 | - |
| 現況 | 空室(入居歴無) |
| 引渡時期 | 相談 |
| 引渡条件 | |
| 取引態様 | 媒介 |
| 管理コード | ST412256 |
設備・特記
《設備》:上水道/床暖房/下水道/複層ガラス/クローゼット/カウンターキッチン/浴室暖房/システムキッチン/追い焚き風呂/3口コンロ/浴室乾燥機/バルコニー/24時間換気システム/ワイドバルコニー/都市ガス/LDK15畳以上/納戸/全居室収納/浄水器/トイレ2ヶ所/温水洗浄便座/洗髪洗面化粧台/食器洗浄乾燥機/シューズインクローゼット/全居室フローリング/TVモニター付きインターホン
《物件の特徴》:-
備考
《その他制限》:準防火地域
《その他》:備考:全3邸 最新設備や個性あるプランが魅力です。地盤保証20年!3階建 バルコニー2か所 LDK15帖以上 食洗器・床暖房付。収納スペースを最大限に確保。機能的な室内仕様で団欒のある暮らし。浄水機付対面キッチン カラーTVモニターホン 複層ガラス採用 / 国土法届出:不要
《建築確認番号》:第25UDI1W建02438号
※詳細については、Webサイトにてご確認ください。現状と異なる場合は、現状を優先させていただきます。
※取引態様の欄に「媒介」と表示された物件は「仲介物件」です。ご成約の際には仲介手数料を申し受けます。
情報更新日|2025年11月29日
次回更新予定|2025年12月14日