6,280万円
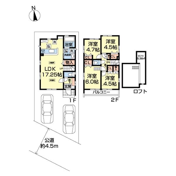
4LDK
種別 戸建て
建物面積 86.94㎡(壁芯)
おすすめ
ポイント
全2邸 長期優良住宅と住宅性能評価書の取得で安心の住まいを提供
リビングで光溢れる明るくのびやかな空間でゆったりと寛げます。
床暖房 エアコン 防犯断熱仕様玄関ドア ハイブリッド給湯器採用
2部屋から行き来できるワイドバルコニー 2駅利用可能な立地。
| 築年月 | 2026年1月 |
|---|---|
| 構造 | 木造 |
| 階数 | 2階建て |
| 土地面積 | 109.00㎡ (32.97坪) |
| 駐車スペース | 駐車場あり( 2台) |
| 都市計画 | 市街化区域 |
| 用途地域 | 第一種低層住居専用地域 |
| 建蔽率/容積率 | 40% / 80% |
| 地目 | 宅地 |
| 区画整理 | - |
| 接道 | |
| 私道 | なし |
| 権利 | 所有権 |
| 借地権 | - |
| 現況 | 未完成 |
| 引渡時期 | 2026年2月上旬予定 |
| 引渡条件 | |
| 取引態様 | 媒介 |
| 管理コード | ST412459 |
設備・特記
《設備》:陽当り良好/BELS/省エネ基準適合/上水道/南道路/床暖房/フラット35S適合・利用可/小学校徒歩10分以内/下水道/複層ガラス/カウンターキッチン/クローゼット/浴室暖房/システムキッチン/追い焚き風呂/3口コンロ/浴室乾燥機/照明器具/24時間換気システム/駐車場2台分/ワイドバルコニー/都市ガス/エアコン/長期優良住宅/性能評価書取得/整形地/設計住宅性能評価書/南向き/吹抜/LDK15畳以上/閑静な住宅街/全居室収納/トイレ2ヶ所/温水洗浄便座/食器洗浄乾燥機/床下収納/全居室フローリング
《物件の特徴》:-
備考
《その他制限》:第1種高度地区、22条区域
《その他》:販売戸数:2戸 / 備考:全2邸 長期優良住宅と住宅性能評価書の取得で安心の住まいを提供。リビングで光溢れる明るくのびやかな空間でゆったりと寛げます。床暖房 エアコン 防犯断熱仕様玄関ドア ハイブリッド給湯器採用。2部屋から行き来できるワイドバルコニー ロフト付 2駅利用可能 / 国土法届出:不要
《建築確認番号》:第R07SHC114162号
※詳細については、Webサイトにてご確認ください。現状と異なる場合は、現状を優先させていただきます。
※取引態様の欄に「媒介」と表示された物件は「仲介物件」です。ご成約の際には仲介手数料を申し受けます。
情報更新日|2025年12月15日
次回更新予定|2025年12月31日