3,580万円
3LDK
種別 戸建て
建物面積 88.40㎡(壁芯)
おすすめ
ポイント
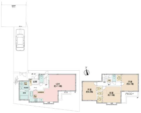
全室南向き・2面採光の明るい住空間。2階建プラン 3LDK。
心地よい室内空間ゆとりのLDK17.3帖。足元ポカポカ床暖房付
兼六土地建物旧分譲地の全24棟開発分譲地できれいな区画割です。
追焚機能 床下収納 屋根裏収納 テラス 屋外ウッドデッキあり。
| 築年月 | 2008年11月 |
|---|---|
| 構造 | 木造 |
| 階数 | 2階建て |
| 土地面積 | 112.85㎡ (34.13坪) |
| 駐車スペース | 駐車場あり( 2台) |
| 都市計画 | 市街化区域 |
| 用途地域 | 第一種低層住居専用地域 |
| 建蔽率/容積率 | 40% / 80% |
| 地目 | 宅地 |
| 区画整理 | - |
| 接道 | |
| 私道 | なし |
| 権利 | 所有権 |
| 借地権 | - |
| 現況 | 空室(入居歴有) |
| 引渡時期 | 即時 |
| 引渡条件 | |
| 取引態様 | 媒介 |
| 管理コード | ST412936 |
設備・特記
《設備》:陽当り良好/上水道/床暖房/下水道/開発分譲地内/外装リフォーム/クローゼット/テラス/システムキッチン/追い焚き風呂/3口コンロ/駐車場2台分/ワイドバルコニー/南面バルコニー/都市ガス/南向き/LDK15畳以上/全室2面採光/閑静な住宅街/全居室収納/トイレ2ヶ所/温水洗浄便座/床下収納/ウッドデッキ/出窓/全居室フローリング/全室南向き
《物件の特徴》:-
備考
《その他制限》:第一種高度地区
《その他》:備考:全室南向き・2面採光の明るい住空間。2階建プラン 3LDK。心地よい室内空間ゆとりのLDK17.3帖。足元ポカポカ床暖房付。兼六土地建物旧分譲地の全24棟開発分譲地できれいな区画割です。追焚機能 床下収納 屋根裏収納 テラス 屋外ウッドデッキあり。 / 国土法届出:不要
※詳細については、Webサイトにてご確認ください。現状と異なる場合は、現状を優先させていただきます。
※取引態様の欄に「媒介」と表示された物件は「仲介物件」です。ご成約の際には仲介手数料を申し受けます。
情報更新日|2025年12月22日
次回更新予定|2026年1月7日