3,480万円
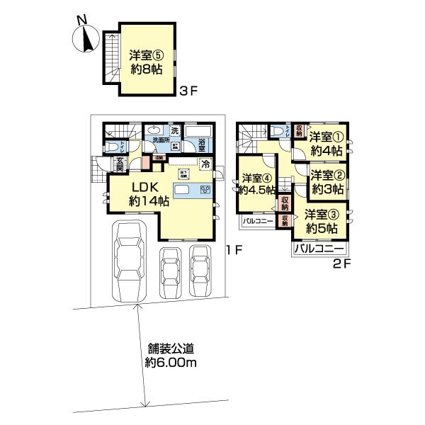
5LDK
種別 戸建て
建物面積 89.63㎡(壁芯)
おすすめ
ポイント
駐車3台可能 電気自動車用コンセント付き 前面南側6M公道
バルコニー2カ所 シャッター網戸付き 浴室乾燥機
家族で寛ぐLDK14帖 食洗機付き対面キッチン パントリー
エアコン2台 テレビ付きTVボード2台付 家具付き 完成済み
| 築年月 | 2025年11月 |
|---|---|
| 構造 | 木造 |
| 階数 | 2階建て |
| 土地面積 | 84.74㎡ (25.63坪) |
| 駐車スペース | 駐車場あり( 3台) |
| 都市計画 | 市街化調整区域 |
| 用途地域 | 無指定 |
| 建蔽率/容積率 | 60% / 200% |
| 地目 | 宅地 |
| 区画整理 | - |
| 接道 | |
| 私道 | なし |
| 権利 | 所有権 |
| 借地権 | - |
| 現況 | 空室(入居歴無) |
| 引渡時期 | 即時 |
| 引渡条件 | |
| 取引態様 | 媒介 |
| 管理コード | ST413143 |
設備・特記
《設備》:陽当り良好/上水道/南道路/前道6m以上/フラット35S適合・利用可/複層ガラス/下水道/カウンターキッチン/クローゼット/浴室暖房/システムキッチン/追い焚き風呂/3口コンロ/浴室乾燥機/バルコニー/照明器具/駐車場3台分/南面バルコニー/プロパンガス/エアコン/南向き/パントリー/地盤調査書有/トイレ2ヶ所/温水洗浄便座/食器洗浄乾燥機/床下収納
《物件の特徴》:-
備考
《その他》:販売戸数:1戸 / 備考:駐車3台可能 電気自動車用コンセント付き 前面南側6M公道 バルコニー2カ所 シャッター網戸付き 浴室乾燥機 家族で寛ぐLDK14帖 食洗機付き対面キッチン パントリー エアコン2台 テレビ付きTVボード2台付 家具付き 完成済み / 国土法届出:不要
※詳細については、Webサイトにてご確認ください。現状と異なる場合は、現状を優先させていただきます。
※取引態様の欄に「媒介」と表示された物件は「仲介物件」です。ご成約の際には仲介手数料を申し受けます。
情報更新日|2026年2月2日
次回更新予定|2026年2月26日