4,790万円
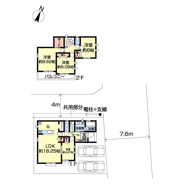
4LDK
種別 戸建て
建物面積 103.50㎡(壁芯)
おすすめ
ポイント
心地よい室内空間ゆとりのLDK18帖。対面キッチンです。
全5棟 2階建プラン 4LDK+カースペース2台 充実設備付き
日々の疲れを癒す、ゆったり1坪サイズのお風呂でリラックス。
24時間換気 浄水器 TVドアホン 複層ガラス シャワー洗面台
| 築年月 | 2026年2月 |
|---|---|
| 構造 | 木造 |
| 階数 | 2階建て |
| 土地面積 | 118.92㎡ (35.97坪) |
| 駐車スペース | 駐車場あり( 2台) |
| 都市計画 | 市街化区域 |
| 用途地域 | 第一種住居地域 |
| 建蔽率/容積率 | 60% / 200% |
| 地目 | 宅地 |
| 区画整理 | - |
| 接道 | |
| 私道 | なし |
| 権利 | 所有権 |
| 借地権 | - |
| 現況 | 未完成 |
| 引渡時期 | 2026年2月下旬予定 |
| 引渡条件 | |
| 取引態様 | 媒介 |
| 管理コード | ST413193 |
設備・特記
《設備》:上水道/前道6m以上/フラット35S適合・利用可/下水道/複層ガラス/カウンターキッチン/クローゼット/システムキッチン/追い焚き風呂/3口コンロ/24時間換気システム/LDK18畳以上/駐車場2台分/ワイドバルコニー/都市ガス/整形地/設計住宅性能評価書/浄水器/全居室収納/トイレ2ヶ所/温水洗浄便座/洗髪洗面化粧台/床下収納/バス1坪以上/ウォークインクローゼット/全居室フローリング/TVモニター付きインターホン/角地
《物件の特徴》:-
備考
《その他制限》:日影規制4m・景観法・宅地造成及び特定盛土等規制法・都市再生特別措置法・亀久保地区地区計画・他
《その他》:備考:全5棟 2階建プラン 4LDK+カースペース2台 充実設備付き。心地よい室内空間ゆとりのLDK18帖。対面キッチンです。日々の疲れを癒す、ゆったり1坪サイズのお風呂でリラックス。24時間換気 浄水器 TVドアホン 複層ガラス シャワー洗面台 / 国土法届出:不要
《建築確認番号》:第HPA-25-13094-1号
※詳細については、Webサイトにてご確認ください。現状と異なる場合は、現状を優先させていただきます。
※取引態様の欄に「媒介」と表示された物件は「仲介物件」です。ご成約の際には仲介手数料を申し受けます。
情報更新日|2025年12月26日
次回更新予定|2026年1月10日