5,500万円
表面利回り:約3.92%
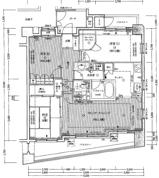
3LDK
種別 投資マンション
専有面積 78.97㎡(壁芯)
おすすめ
ポイント
需要の高い川崎駅が徒歩8分、オーナーチェンジ物件
5路線2駅利用可!
78㎡以上のゆとりのある住空間
都内に出やすい川崎駅最寄り
| 築年月 | 2000年8月 |
|---|---|
| 構造 | 鉄筋コンクリート造 |
| 所在階 | 14階建ての8階 |
| 総戸数 | 64戸 |
| 向き | 南東 |
| バルコニー面積 | 15.69㎡ |
| 駐車場 | 空き無し |
| 施工会社 | - |
| 管理会社 | - |
| 管理形態 | 全部委託(日勤) |
| 権利 | 所有権 |
| 借地権 | - |
| 現況 | 賃貸中 |
| 引渡時期 | 相談 |
| 引渡条件 | オーナーチェンジ |
| 管理費 | 16,580円/月 |
| 修繕積立金 | 16,770円/月 |
| 取引態様 | 媒介 |
| 管理コード | ST413221 |
設備・特記
《設備》:都市ガス/システムキッチン/クローゼット/バルコニー/エレベータ
《物件の特徴》:需要の高い川崎駅が徒歩8分、オーナーチェンジ物件
備考
《満室時想定賃料》:約216万円(年間)
《その他》:管理組合:あり / 用途地域:商業地域 / 地勢:平坦 / 国土法届出:不要
本物件は、オークション(入札)物件です。表示価格は「最低売却価格」です。
最低売却価格を下回る金額での入札も可能ですが、交渉の結果、契約に至らない可能性があります。
物件を見学の上、専用用紙にて入札をお願いします。
最も高い金額で入札されたお客様が落札(交渉)権を獲得します。詳しくは担当店舗までお問い合わせ下さい。
入札受付締切日時: 2026年2月14日10時30分
入札会場:新横浜グレイスホテル
オークションの流れについては、ホームページ(https://www.myhome-auction.com/)でご確認ください。
※詳細については、Webサイトにてご確認ください。現状と異なる場合は、現状を優先させていただきます。
※取引態様の欄に「媒介」と表示された物件は「仲介物件」です。ご成約の際には仲介手数料を申し受けます。
情報更新日|2026年2月8日
次回更新予定|2026年2月28日