3,590万円
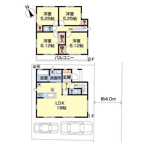
4LDK
種別 戸建て
建物面積 93.56㎡(壁芯)
おすすめ
ポイント
永住対応の4LDK、ゆとりを生み出すこだわりの設計・最新設備。
暮らしの質を高める住空間 ZEH水準省エネ住宅。30坪・整形地
広いリビングは家族のくつろぎのスペース。LDK18帖。収納豊富
ワイドバルコニー 浴室乾燥機 対面キッチン 落ち着いた住環境。
| 築年月 | 2026年5月 |
|---|---|
| 構造 | 木造 |
| 階数 | 2階建て |
| 土地面積 | 99.36㎡ (30.05坪) |
| 駐車スペース | 駐車場あり( 2台) |
| 都市計画 | 市街化区域 |
| 用途地域 | 第一種低層住居専用地域 |
| 建蔽率/容積率 | 60% / 100% |
| 地目 | 宅地 |
| 区画整理 | - |
| 接道 | |
| 私道 | 私道負担面積:74.96㎡(持分:1/10) |
| 権利 | 所有権 |
| 借地権 | - |
| 現況 | 未完成 |
| 引渡時期 | 2026年5月下旬予定 |
| 引渡条件 | |
| 取引態様 | 媒介 |
| 管理コード | ST413658 |
設備・特記
《設備》:陽当り良好/上水道/複層ガラス/下水道/カウンターキッチン/クローゼット/浴室暖房/システムキッチン/オートバス/追い焚き風呂/3口コンロ/浴室乾燥機/照明器具/LDK18畳以上/24時間換気システム/駐車場2台分/ワイドバルコニー/都市ガス/整形地/閑静な住宅街/全居室収納/トイレ2ヶ所/温水洗浄便座/床下収納/全居室フローリング
《物件の特徴》:-
備考
《その他制限》:22条区域
《その他》:備考:永住対応の4LDK、ゆとりを生み出すこだわりの設計・最新設備。暮らしの質を高める住空間 ZEH水準省エネ住宅。30坪・整形地。広いリビングは家族のくつろぎのスペース。LDK18帖。収納豊富。ワイドバルコニー 浴室乾燥機 対面キッチン 落ち着いた住環境。 / 国土法届出:不要
《建築確認番号》:第HPA-25-12429-1号
※詳細については、Webサイトにてご確認ください。現状と異なる場合は、現状を優先させていただきます。
※取引態様の欄に「媒介」と表示された物件は「仲介物件」です。ご成約の際には仲介手数料を申し受けます。
情報更新日|2026年3月17日
次回更新予定|2026年3月31日