3,580万円
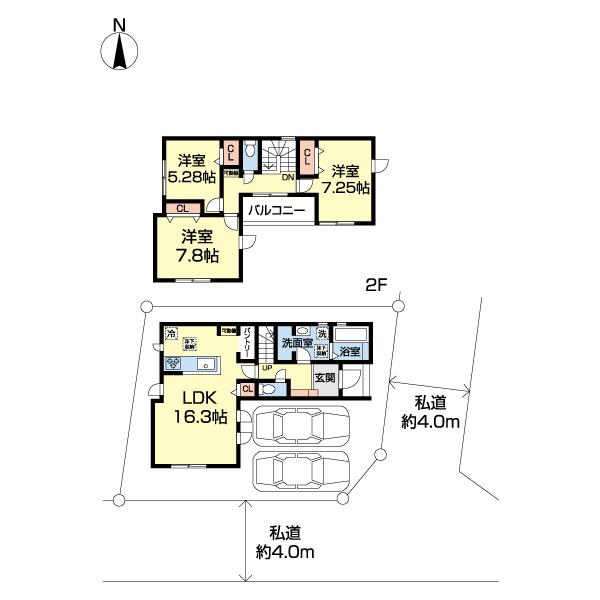
3LDK
種別 戸建て
建物面積 99.36㎡(壁芯)
おすすめ
ポイント
水廻りを中心に快適性を追求した最新設備を標準装備 光熱費を抑制
全2棟 電動シャッター 大型収納も細やかな収納も豊富に設置済。
長期優良住宅と住宅性能評価書の取得で安心の住まいを提供。
陽当たり・通風・眺望に恵まれた全居室南向き、明るい住空間が特徴
| 築年月 | 2026年1月 |
|---|---|
| 構造 | 木造 |
| 階数 | 2階建て |
| 土地面積 | 113.53㎡ (34.34坪) |
| 駐車スペース | 駐車場あり( 2台) |
| 都市計画 | 市街化区域 |
| 用途地域 | 第一種低層住居専用地域 |
| 建蔽率/容積率 | 50% / 100% |
| 地目 | 宅地 |
| 区画整理 | - |
| 接道 | |
| 私道 | 私道負担面積:65.93㎡(持分:1/2) |
| 権利 | 所有権 |
| 借地権 | - |
| 現況 | 空室(入居歴無) |
| 引渡時期 | 相談 |
| 引渡条件 | |
| 取引態様 | 媒介 |
| 管理コード | ST413786 |
設備・特記
《設備》:上水道/フラット35S適合・利用可/下水道/カウンターキッチン/クローゼット/システムキッチン/追い焚き風呂/3口コンロ/電動シャッター/バルコニー/駐車場2台分/南面バルコニー/都市ガス/長期優良住宅/整形地/性能評価書取得/設計住宅性能評価書/LDK15畳以上/閑静な住宅街/パントリー/全居室収納/トイレ2ヶ所/温水洗浄便座/床下収納/全居室フローリング/全室南向き
《物件の特徴》:-
備考
《その他制限》:防火地域、22条区域
《その他》:販売戸数:2戸 / 備考:水廻りを中心に快適性を追求した最新設備を標準装備 光熱費を抑制。全2棟 電動シャッター 大型収納も細やかな収納も豊富に設置済。長期優良住宅と住宅性能評価書の取得で安心の住まいを提供。陽当たり・通風・眺望に恵まれた全居室南向き、明るい住空間が特徴。 / 国土法届出:不要
《建築確認番号》:第25UDI1W建07782号
※詳細については、Webサイトにてご確認ください。現状と異なる場合は、現状を優先させていただきます。
※取引態様の欄に「媒介」と表示された物件は「仲介物件」です。ご成約の際には仲介手数料を申し受けます。
情報更新日|2026年1月29日
次回更新予定|2026年2月15日