4,180万円
3SLDK
種別 戸建て
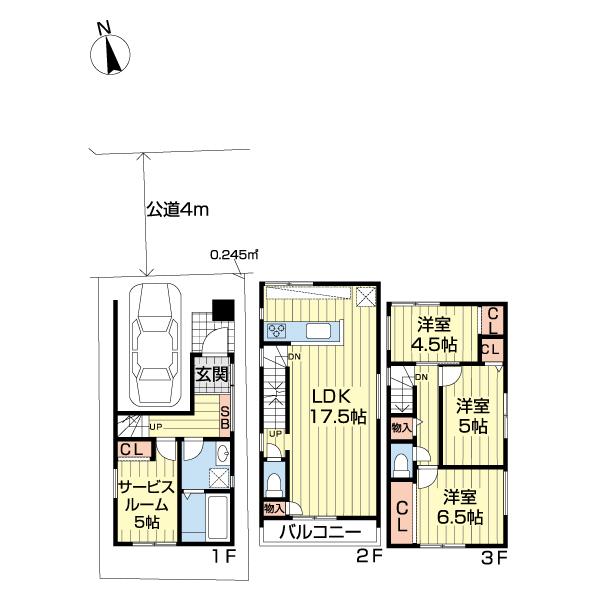
建物面積 102.45㎡(壁芯)
おすすめ
ポイント
全2棟 3階建 毎日の負担を軽くスムーズな家事動線が魅力の設計
暮らしやすさが魅力。快適な暮らしをサポートする充実した設備。
リビングで光溢れる明るくのびやかな空間でゆったりと寛げます。
豊富な収納スペースで室内をより広く有効に使うことができます。
| 築年月 | 2026年2月 |
|---|---|
| 構造 | 木造 |
| 階数 | 3階建て |
| 土地面積 | 58.02㎡ (17.55坪) |
| 駐車スペース | 駐車場あり( 1台) |
| 都市計画 | 市街化区域 |
| 用途地域 | 第一種中高層住居専用地域 |
| 建蔽率/容積率 | 60% / 200% |
| 地目 | 宅地 |
| 区画整理 | - |
| 接道 | |
| 私道 | なし |
| 権利 | 所有権 |
| 借地権 | - |
| 現況 | 未完成 |
| 引渡時期 | 2026年2月下旬予定 |
| 引渡条件 | |
| 取引態様 | 媒介 |
| 管理コード | ST413792 |
設備・特記
《設備》:上水道/複層ガラス/下水道/クローゼット/カウンターキッチン/浴室暖房/システムキッチン/追い焚き風呂/3口コンロ/浴室乾燥機/バルコニー/照明器具/24時間換気システム/ビルトインガレージ/南面バルコニー/都市ガス/整形地/LDK15畳以上/全居室収納/地盤調査書有/トイレ2ヶ所/温水洗浄便座/洗髪洗面化粧台/食器洗浄乾燥機/TVモニター付きインターホン
《物件の特徴》:-
備考
《その他制限》:法22条区域
《その他》:販売戸数:2戸 / 備考:全2棟 3階建 毎日の負担を軽くスムーズな家事動線が魅力の設計。暮らしやすさが魅力。快適な暮らしをサポートする充実した設備。リビングで光溢れる明るくのびやかな空間でゆったりと寛げます。豊富な収納スペースで室内をより広く有効に使うことができます。 / 国土法届出:不要
《建築確認番号》:第25UDIIW建07086号
※詳細については、Webサイトにてご確認ください。現状と異なる場合は、現状を優先させていただきます。
※取引態様の欄に「媒介」と表示された物件は「仲介物件」です。ご成約の際には仲介手数料を申し受けます。
情報更新日|2026年1月29日
次回更新予定|2026年2月15日