3,599万円
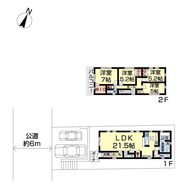
4LDK
種別 戸建て
建物面積 108.68㎡(壁芯)
おすすめ
ポイント
閑静な住宅街に登場!快適さとゆとりが魅力のファミリータイプ!
ゆったりとした大空間を実現!敷地面積37坪・建物面積32坪!
近代的な設備が充実!一坪ユニットバス・食洗機・浴室乾燥機など。
収納豊富!適材適所の収納で、スッキリきれいにお片付けできます。
| 築年月 | 2025年3月 |
|---|---|
| 構造 | 木造 |
| 階数 | 2階建て |
| 土地面積 | 123.91㎡ (37.48坪) |
| 駐車スペース | 駐車場あり( 2台) |
| 都市計画 | 市街化区域 |
| 用途地域 | 第一種低層住居専用地域 |
| 建蔽率/容積率 | 50% / 100% |
| 地目 | 宅地 |
| 区画整理 | - |
| 接道 | 南西側6.0m公道に接道 |
| 私道 | なし |
| 権利 | 所有権 |
| 借地権 | - |
| 現況 | 空室(入居歴無) |
| 引渡時期 | 相談 |
| 引渡条件 | |
| 取引態様 | 媒介 |
| 管理コード | ST414998 |
設備・特記
《設備》:都市ガス/上水道/前道6m以上/閑静な住宅街/下水道/カウンターキッチン/クローゼット/浄水器/全居室収納/トイレ2ヶ所/温水洗浄便座/洗髪洗面化粧台/食器洗浄乾燥機/システムキッチン/床下収納/追い焚き風呂/浴室乾燥機/バス1坪以上/ウォークインクローゼット/LDK20畳以上/バルコニー/24時間換気システム/TVモニター付きインターホン
《物件の特徴》:-
備考
《その他制限》:法第22条区域、下水道処理区域、宅地造成法規制区域、高さの最高限度10m
《その他》:備考:閑静な住宅街に登場!快適さとゆとりが魅力のファミリータイプ!ゆったりとした大空間を実現!敷地面積37坪・建物面積32坪!近代的な設備が充実!一坪ユニットバス・食洗機・浴室乾燥機など。収納豊富!適材適所の収納で、スッキリきれいにお片付けできます。 / 国土法届出:不要
《建築確認番号》:第24UDI1W建01381号
※詳細については、Webサイトにてご確認ください。現状と異なる場合は、現状を優先させていただきます。
※取引態様の欄に「媒介」と表示された物件は「仲介物件」です。ご成約の際には仲介手数料を申し受けます。
情報更新日|2026年3月14日
次回更新予定|2026年3月30日