3,980万円
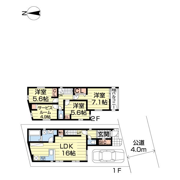
3SLDK
種別 戸建て
建物面積 91.18㎡(壁芯)
おすすめ
ポイント
全3棟/現代的な設備が魅力/家事効率にこだわった快適住宅が登場
広いリビングは家族のくつろぎのスペース。LDK16〜17.5帖
適材適所に設置されたクローゼットが、すっきりキレイに片付けます
南道路に面しているため陽当たり良好/乾燥機など先進の仕様を装備
| 築年月 | 2026年4月 |
|---|---|
| 構造 | 木造 |
| 階数 | 2階建て |
| 土地面積 | 81.70㎡ (24.71坪) |
| 駐車スペース | 駐車場あり( 1台) |
| 都市計画 | 市街化区域 |
| 用途地域 | 第一種低層住居専用地域 |
| 建蔽率/容積率 | 60% / 150% |
| 地目 | 宅地 |
| 区画整理 | - |
| 接道 | |
| 私道 | なし |
| 権利 | 所有権 |
| 借地権 | - |
| 現況 | 未完成 |
| 引渡時期 | 2026年4月下旬予定 |
| 引渡条件 | |
| 取引態様 | 媒介 |
| 管理コード | ST415040 |
設備・特記
《設備》:陽当り良好/上水道/下水道/複層ガラス/カウンターキッチン/クローゼット/浴室暖房/システムキッチン/追い焚き風呂/3口コンロ/浴室乾燥機/照明器具/24時間換気システム/南面バルコニー/都市ガス/南向き/閑静な住宅街/LDK15畳以上/全室2面採光/パントリー/浄水器/全居室収納/トイレ2ヶ所/洗髪洗面化粧台/食器洗浄乾燥機/温水洗浄便座/シューズインクローゼット/全居室フローリング/TVモニター付きインターホン
《物件の特徴》:-
備考
《その他制限》:法22条区域、日影規制3-2h/1.5m
《その他》:備考:全3棟/現代的な設備が魅力/家事効率にこだわった快適住宅が登場/広いリビングは家族のくつろぎのスペース。LDK16〜17.5帖/適材適所に設置されたクローゼットが、すっきりキレイに片付けます/南道路に面しているため陽当たり良好/乾燥機など先進の仕様を装備 / 国土法届出:不要
《建築確認番号》:第BNV確済25-964号
※詳細については、Webサイトにてご確認ください。現状と異なる場合は、現状を優先させていただきます。
※取引態様の欄に「媒介」と表示された物件は「仲介物件」です。ご成約の際には仲介手数料を申し受けます。
情報更新日|2026年3月16日
次回更新予定|2026年3月31日