5,399万円
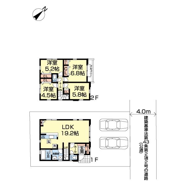
4LDK
種別 戸建て
建物面積 95.22㎡(壁芯)
おすすめ
ポイント
広さを求める方に大型4LDK カースペース2台駐車可能
全居室に収納付でスッキリ物が片づけられ、お部屋もきれいに!
緑豊かで閑静な住宅地。都心へのアクセスしやすい立地です。
建物完成済、建物の室内まで確認可能な納得の住まい選びを。
| 築年月 | 2026年3月 |
|---|---|
| 構造 | 木造 |
| 階数 | 2階建て |
| 土地面積 | 124.50㎡ (37.66坪) |
| 駐車スペース | 駐車場あり( 2台) |
| 都市計画 | 市街化区域 |
| 用途地域 | 第一種低層住居専用地域 |
| 建蔽率/容積率 | 40% / 80% |
| 地目 | 宅地 |
| 区画整理 | - |
| 接道 | |
| 私道 | なし |
| 権利 | 所有権 |
| 借地権 | - |
| 現況 | 空室(入居歴無) |
| 引渡時期 | 即時 |
| 引渡条件 | |
| 取引態様 | 媒介 |
| 管理コード | ST415953 |
設備・特記
《設備》:都市ガス/上水道/整形地/フラット35S適合・利用可/閑静な住宅街/下水道/クローゼット/全居室収納/トイレ2ヶ所/温水洗浄便座/浴室暖房/洗髪洗面化粧台/床下収納/追い焚き風呂/シューズインクローゼット/浴室乾燥機/バス1坪以上/バルコニー/LDK18畳以上/24時間換気システム/全居室フローリング/駐車場2台分/TVモニター付きインターホン
《物件の特徴》:-
備考
《その他制限》:法第22条区域、道路斜線制限有、北側斜線制限、日影制限、絶対高さ10m
《その他》:販売戸数:3戸 / 備考:広さを求める方に大型4LDK カースペース2台駐車可能。全居室に収納付でスッキリ物が片づけられ、お部屋もきれいに!緑豊かで閑静な住宅地。都心へのアクセスしやすい立地です。建物完成済、建物の室内まで確認可能な納得の住まい選びを。 / 国土法届出:不要
《建築確認番号》:第25UDI1W建09091号
※詳細については、Webサイトにてご確認ください。現状と異なる場合は、現状を優先させていただきます。
※取引態様の欄に「媒介」と表示された物件は「仲介物件」です。ご成約の際には仲介手数料を申し受けます。
情報更新日|2026年4月13日
次回更新予定|2026年5月1日