6,780万円
4LDK
種別 戸建て
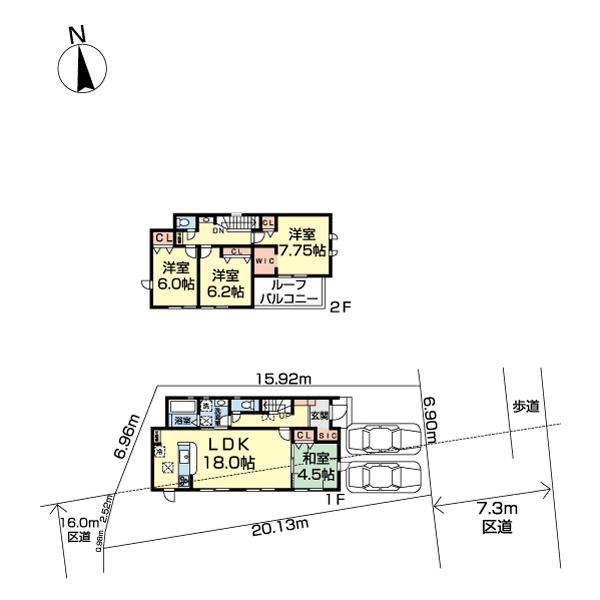
建物面積 104.74㎡(壁芯)
おすすめ
ポイント
断熱等級6のエアコン付4LDK/「舎人」駅から徒歩5分の好立地
家族の寛ぎのプライベート時間を過ごす、ゆとりのLDK18.0帖
適材適所に設置されたクローゼットが、すっきりキレイに片付けます
建物完成!実物を見学して陽当たりやお部屋の開放感を確認出来ます
| 築年月 | 2026年3月 |
|---|---|
| 構造 | 木造 |
| 階数 | 2階建て |
| 土地面積 | 150.43㎡ (45.50坪) |
| 駐車スペース | 駐車場あり( 2台) |
| 都市計画 | 市街化区域 |
| 用途地域 | 第一種低層住居専用地域 |
| 建蔽率/容積率 | 50% / 150% |
| 地目 | 宅地 |
| 区画整理 | - |
| 接道 | |
| 私道 | なし |
| 権利 | 所有権 |
| 借地権 | - |
| 現況 | 空室(入居歴無) |
| 引渡時期 | 相談 |
| 引渡条件 | |
| 取引態様 | 媒介 |
| 管理コード | ST416017 |
設備・特記
《設備》:上水道/小学校徒歩10分以内/下水道/カウンターキッチン/クローゼット/システムキッチン/追い焚き風呂/3口コンロ/電動シャッター/照明器具/LDK18畳以上/24時間換気システム/駐車場2台分/ルーフバルコニー/都市ガス/エアコン/性能評価書取得/設計住宅性能評価書/閑静な住宅街/全居室収納/トイレ2ヶ所/温水洗浄便座/食器洗浄乾燥機/床下収納/シューズインクローゼット/バス1坪以上/ウォークインクローゼット/TVモニター付きインターホン
《物件の特徴》:-
備考
《その他制限》:第2種高度地区、準防火地域、足立北部地域舎人・古千谷本町地区地区計画
《その他》:備考:断熱等級6のエアコン付4LDK/「舎人」駅から徒歩5分の好立地。家族の寛ぎのプライベート時間を過ごす、ゆとりのLDK18.0帖。適材適所に設置されたクローゼットが、すっきりキレイに片付けます。建物完成!実物を見学して陽当たりやお部屋の開放感を確認出来ます。 / 国土法届出:不要
《建築確認番号》:第25UDI1W建09877号
※詳細については、Webサイトにてご確認ください。現状と異なる場合は、現状を優先させていただきます。
※取引態様の欄に「媒介」と表示された物件は「仲介物件」です。ご成約の際には仲介手数料を申し受けます。
情報更新日|2026年4月16日
次回更新予定|2026年5月1日