5,580万円
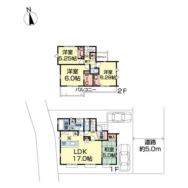
4LDK
種別 戸建て
建物面積 99.01㎡(壁芯)
おすすめ
ポイント
全15邸 多様なプランを取り揃えております。全区画敷地36坪
太陽光発電システム搭載。3駅3路線徒歩圏内のエリアに大型分譲地
収納スペースを最大限に確保。機能的な室内仕様で団欒のある暮らし
開放的なリビング・ダイニングは家族の団らんのひと時を演出。
| 築年月 | 2026年4月 |
|---|---|
| 構造 | 木造 |
| 階数 | 2階建て |
| 土地面積 | 124.76㎡ (37.73坪) |
| 駐車スペース | 駐車場あり( 2台) |
| 都市計画 | 市街化区域 |
| 用途地域 | 準工業地域 |
| 建蔽率/容積率 | 60% / 200% |
| 地目 | 宅地 |
| 区画整理 | - |
| 接道 | |
| 私道 | なし |
| 権利 | 所有権 |
| 借地権 | - |
| 現況 | 空室(入居歴無) |
| 引渡時期 | 2026年5月中旬予定 |
| 引渡条件 | |
| 取引態様 | 媒介 |
| 管理コード | ST416368 |
設備・特記
《設備》:BELS/省エネ基準適合/制震構造/上水道/耐震構造/フラット35S適合・利用可/下水道/カウンターキッチン/クローゼット/浴室暖房/システムキッチン/追い焚き風呂/3口コンロ/浴室乾燥機/24時間換気システム/照明器具/駐車場2台分/ワイドバルコニー/都市ガス/長期優良住宅/区画整理地内/性能評価書取得/設計住宅性能評価書/LDK15畳以上/浄水器/全居室収納/トイレ2ヶ所/温水洗浄便座/洗髪洗面化粧台/床下収納/シューズインクローゼット/ウォークインクローゼット/全居室フローリング/TVモニター付きインターホン
《物件の特徴》:-
備考
《その他制限》:日野市まちづくり条例、万願寺第三土地区画整理事業、景観法、航空法、準防火地域、宅地造成等規制法 他
《その他》:販売戸数:15戸 / 備考:全15邸 多様なプランを取り揃えております。全区画敷地36坪。太陽光発電システム搭載。3駅3路線徒歩圏内のエリアに大型分譲地。収納スペースを最大限に確保。機能的な室内仕様で団欒のある暮らし。開放的なリビング・ダイニングは家族の団らんのひと時を演出。 / 国土法届出:不要
《建築確認番号》:第R07SHC120889号
※詳細については、Webサイトにてご確認ください。現状と異なる場合は、現状を優先させていただきます。
※取引態様の欄に「媒介」と表示された物件は「仲介物件」です。ご成約の際には仲介手数料を申し受けます。
情報更新日|2026年4月26日
次回更新予定|2026年5月14日