5,690万円
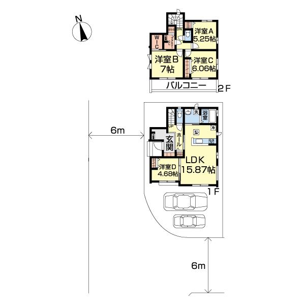
4LDK
種別 戸建て
建物面積 100.40㎡(壁芯)
おすすめ
ポイント
目の前には小学校でお子様の通学も安心!全14棟の大型分譲地!
2階建プラン 4LDK 長期優良住宅 フラット35S対応物件。
ゆとりのLDK15.87帖。寛ぐ家族と会話も弾む対面キッチン。
現地周辺は低層中心の住宅街が広がり豊かな日差しが差し込みます。
| 築年月 | 2026年4月 |
|---|---|
| 構造 | 木造 |
| 階数 | 2階建て |
| 土地面積 | 117.53㎡ (35.55坪) |
| 駐車スペース | 駐車場あり( 2台) |
| 都市計画 | 市街化区域 |
| 用途地域 | 第一種低層住居専用地域 |
| 建蔽率/容積率 | 50% / 100% |
| 地目 | 宅地 |
| 区画整理 | - |
| 接道 | |
| 私道 | なし |
| 権利 | 所有権 |
| 借地権 | - |
| 現況 | 空室(入居歴無) |
| 引渡時期 | 相談 |
| 引渡条件 | |
| 取引態様 | 媒介 |
| 管理コード | ST416452 |
設備・特記
《設備》:陽当り良好/BELS/省エネ基準適合/上水道/南道路/前道6m以上/フラット35S適合・利用可/小学校徒歩10分以内/下水道/カウンターキッチン/クローゼット/システムキッチン/追い焚き風呂/3口コンロ/駐車場2台分/ワイドバルコニー/南面バルコニー/都市ガス/長期優良住宅/整形地/閑静な住宅街/LDK15畳以上/全居室収納/トイレ2ヶ所/温水洗浄便座/床下収納/ウォークインクローゼット/全居室フローリング/角地
《物件の特徴》:-
備考
《その他制限》:22条区域、絶対高さ制限10m
《その他》:備考:目の前には小学校でお子様の通学も安心!全14棟の大型分譲地!2階建プラン 4LDK 長期優良住宅 フラット35S対応物件。ゆとりのLDK15.87帖。寛ぐ家族と会話も弾む対面キッチン。現地周辺は低層中心の住宅街が広がり豊かな日差しが差し込みます。 / 国土法届出:不要
《建築確認番号》:第HPA-25-14241-1号
※詳細については、Webサイトにてご確認ください。現状と異なる場合は、現状を優先させていただきます。
※取引態様の欄に「媒介」と表示された物件は「仲介物件」です。ご成約の際には仲介手数料を申し受けます。
情報更新日|2026年4月28日
次回更新予定|2026年5月13日